DELAWARE State Fire Prevention Commission
final
705 General Fire Safety
1.1 Ordinary Conduct Requirements.
1.1.1 Spread of Fire. No person shall knowingly permit any fire to spread so as to endanger life or property of another or use or operate any device which may be a source of ignition unless proper removal of flammable material surrounding the operation is accomplished or such other reasonable precautions are taken to ensure against the starting and spreading of unfriendly fires.
1.1.2 Burning of Construction Materials. During construction or demolition of buildings or structures no waste materials or rubbish shall be disposed of by burning on the premises or in the immediate vicinity.
1.1.3 Bonfires and Rubbish Fires. No person shall kindle or maintain any bonfire or rubbish fire or authorize any such fire to be kindled or maintained on any private land unless:
1.1.3.1 The location is not less than fifty feet (50’) from any structure and adequate provision is made to prevent fire from spreading to within fifty feet (50’) of any structure; or
1.1.3.2 The fire is contained in an approved waste burner located safely not less than thirty feet (30’) from any structure. Bonfires and rubbish fires shall be constantly attended by a competent person until such fire is extinguished. This person shall have a garden hose connected to the water supply or other fire extinguishing equipment readily available for use.
1.1.4 Other Outdoor Fires. No person shall kindle or maintain any controlled burning, agricultural burning, fires for land clearing, or fires for demolition and removal of hazards without first notifying the local fire dispatch center of the time and date of the burning.
1.1.5 Authority to Prohibit All Outdoor Fires. The State Fire Marshal may prohibit any and all bonfires, controlled burnings, agriculture burnings, land clearing, fires for demolition and removal of hazards, and out-door rubbish fires whether or not contained, when atmospheric conditions or local circumstances make such fires hazardous. During such time the State Fire Marshal may issue a special burning permit to those persons who show just cause and provide adequate safeguards to prevent the fire from spreading.
1.1.6 Notifying the Fire Department. Whenever an unfriendly fire occurs in any building or on any premises of any kind, the owner, manager, occupant, or any person in control of such building or premises, upon discovery of an unfriendly fire, or evidence of there having been an unfriendly fire, even though it has apparently been extinguished, immediately shall cause notice of the existence of such fire, circumstances of same, and the location therefore to be given to the fire department. This requirement shall not be construed to forbid the owner, manager, or other person in control of the aforementioned building or premises from using all diligence necessary to extinguish such fire prior to the arrival of the fire department. No person shall make, issue, post, or maintain any regulation or order, written or verbal, that would require any person to take any unnecessary delaying action prior to reporting a fire to the fire department.
1.1.7 Reporting Hazardous Condition. Any person, upon discovering evidence of spontaneous heating or other abnormal heating of any merchandise, commodity, cargo, shipment, or other material of any kind in any building, marine vessel, appliance, apparatus, tank, or open stack pile, or any person upon discovering or being apprised of any uncontrolled hazardous gas leak or hazardous material or combustible or flammable liquid spill, shall immediately notify the fire department.
1.1.8 Reporting of Fire Incidents. Any fire brigade, department, or company shall report all incidents to the State Fire Marshal in an electronic format acceptable to the State Fire Marshal within ten days after the end of the month in which the incident occurs.
1.1.9 False Alarm. No person shall deliberately or maliciously turn in an alarm of fire when in fact that person knows that no fire exists. No person shall activate an installed fire warning or extinguishing system for purposes other than emergency, maintenance, drills, or prescribed testing.
1.1.10 Evacuation of Building. Whenever an unfriendly fire occurs in any building, premises, or fire area of any kind, or upon the initiation of a fire alarm all occupants shall evacuate the building, premises, or fire area immediately and shall not re‑enter the building, premises, or fire area unless permission is given by the Fire Chief or Fire Officer in charge of the scene.
1.1.11 Maintaining a Fire Hazard. No person shall knowingly maintain a fire hazard.
1.1.12 Carelessness With Fire. No person shall deliberately, or through carelessness or negligence, set fire to or cause the burning of any bedding, furniture, rug, curtain, drape, or other combustible material, in such manner as to endanger the safety of any person or property.
1.1.13 Posting of Fire Exit Plans. Residential occupancies designed for, intended for, or used by transients shall have an approved copy of fire exit plans conspicuously posted in the lobby and each occupancy unit and at such other locations as may be required by the State Fire Marshal.
1.1.14 Notification of Fire Department of Inoperative Fire Safety Equipment. Persons owning, controlling, or otherwise having charge of any fixed fire extinguishing or fire warning system or standpipe system shall notify the fire department and Office of the State Fire Marshal at any time such system or systems are inoperable or taken out of service. Both shall also be notified when service is restored.
1.1.15 Barricading Vacant Buildings. Every person owning or having charge or control of any vacant building shall remove all combustible waste and refuse therefrom and lock, barricade, or otherwise secure all windows, doors, and other openings in the building to prohibit entry by unauthorized persons.
1.1.16 Smoking. Where in the opinion of the State Fire Marshal conditions exist which make smoking a fire hazard on any premises, "No Smoking" signs shall be posted as directed by the State Fire Marshal. "No Smoking" signs shall be of a color, size, lettering, and location as approved by the State Fire Marshal. No person shall remove such "No Smoking" signs or light, ignite, or otherwise set fire to or smoke any cigar, cigarette, pipe, tobacco, or other form of smoldering substance nor hold, possess, throw, or deposit any lighted or smoldering substance in any place where it would constitute a fire or life hazard.
1.1.16.1 Nothing in the foregoing provision shall be construed as prohibiting smoking in areas, offices, or other rooms which have been designated by the State Fire Marshal as safe smoking areas and have been approved for such purpose.
1.1.17 Use of Torches, Welders, or Laser Cutting Devices. Any person using a torch or other flame producing device, welder, or laser cutting device in any building or structure shall provide one (1) approved fire extinguisher or water hose connected to the water supply on the premises where such burning is done. In all cases, the person doing the burning shall remain on the premises one (1) hour after the torch or flame producing device has been used.
1.1.18 Hazardous Gas in Balloons. No person shall use any flammable, oxidizing, toxic, corrosive, or reactive gas to inflate balloons. Air and inert gases, such as helium and nitrogen, are not prohibited for this purpose.
1.1.19 Fire Doors. Fire doors shall be kept closed at all times.
1.1.20 Interference With Fire Protection Equipment. No person shall render any portable or fixed fire extinguishing system or device or any fire warning system inoperative or inaccessible, except as may be necessary during emergencies, maintenance, drills or prescribed testing.
2.1 All premises which the fire department may be called upon to protect in case of fire and which are not readily accessible from public roads shall be provided with suitable gates, access roads, and fire lanes so that all buildings on the premises are accessible to fire apparatus.
2.2 Fire lanes shall be provided in accordance with the provisions of Regulation 705, Chapter 5.
2.3 In the case of one- and two-family dwellings fire department access shall be provided in such a manner so that fire apparatus will be able to locate within 100 feet of the front door.
2.4 Any dead end road more than 300 feet in length shall be provided with a turn-around or cul-de-sac arranged such that fire apparatus will be able to turn around by making not more than one backing maneuver. The turn-around or cul-de-sac shall be arranged as follows:
2.4.1 Turn-around - Turn-arounds must be arranged in accordance with one of the four standard designs shown in Regulation 705, Chapter 1, Figure 1.
2.4.2 Cul-de-sac - The minimum paved radius of a cul-de-sac is 38 feet.
2.4.3 Parking - Parking shall be prohibited in the turn-arounds and cul-de-sacs.
2.5 It shall be unlawful for any person to park motor vehicles on, or otherwise obstruct, any fire lane.
2.6 A lock box containing keys for fire department access shall be provided at the following occupancies:
2.6.1 Any occupancy that contains a fire alarm signaling system that is monitored off-site, or
2.6.2 Any occupancy that contains an automatic sprinkler system.
2.7 The lock box, as specified in §2.6, shall be listed or approved by the State Fire Marshal for the intended use and installed in such a manner that the fire department will have access to the box.
2.8 Gated Communities
2.8.1 The requirements of this section shall apply to all new gates installed and for any gate replacing more than 50% of the hardware and software after September 13, 2004.
2.8.2 Fire Department access shall be provided to all otherwise inaccessible gated communities, subdivisions, developments, or property by any other name through the use of a system or device approved by the Office of the State Fire Marshal after consultation with the local Fire Chief.
2.8.3 The system or device required in §2.8.2 shall be located in an area accessible to the fire department approved by the Office of the State Fire Marshal after consultation with the local Fire Chief.
2.8.3.1 A system shall consist of one manual and one automated means to open the gate. The owner or their representative shall meet with the local Fire Chief prior to submission to the Office of the State Fire Marshal to agree on the system. A letter of agreement shall be created, and signed by both parties. The letter shall include a detailed description of both the manual and automated means
|
Note: The owner or representative, such as a Homeowner's Association or a Real Estate Management Company, should invite the gate contractor to the meeting with the Fire Chief so issues can be resolved prior to the plan submission. A representative of the Office of the State Fire Marshal can also be invited to the meeting if deemed necessary by either party.
|
2.8.3.2 To be considered accessible for fire department apparatus the actual clear openings shall be not less than 14 feet, the paved surface through the gate shall be not less than 12 feet, and the gate shall be setback from the perpendicular street by at least 50 feet.
Exception: If the 50 foot setback above is not possible, the actual clear openings and the paved surface through the gate shall be made wider than set forth above in order to accommodate all responding emergency response apparatus.
2.8.3.3 Plans submitted to the Office of the State Fire Marshal shall be provided at 1:20, 1:30, 1:40, or 1:50 scale.
2.8.4 The owner and/or occupant of the property requiring fire department access as specified in §2.8.2 and §2.8.3 shall maintain the approved system or device in strict accordance with the manufacturer's guidelines.
2.8.5 The owner and/or occupant of the property requiring fire department access shall not modify access in any manner that could prevent fire department access without obtaining prior approval from the Office of the State Fire Marshal.
3.1 Fire drills shall be held at least once a month in educational occupancies where such occupancies constitute the major occupancy of a building and at least once every two months in institutional occupancies where such occupancies constitute the major occupancy of a building. During severe weather, fire drills may be postponed. A record of all fire drills shall be kept and persons in charge of such occupancies shall maintain a written record on site of all such fire drills held, giving the time and date of each drill held. This record of fire drills shall be made available to a representative of the State Fire Marshal, upon request. The record shall be maintained for a period of three years, not including the current year.
|
Note: Change relieves facilities from requirement of sending reports to the State Fire Marshal.
|
3.2 In educational occupancies fire drills shall include complete evacuation of all persons from the building. In institutional occupancies fire drills shall be conducted to familiarize operating personnel with their assigned positions of emergency duty; complete evacuation of all persons from the building at the time of the fire drill shall be required only where it is practicable and does not involve moving or disturbing persons under medical care.
4.1 Sweeping Compounds. Only approved water solutions or detergents, floor sweeping compounds, and grease absorbents shall be used for cleaning floors. The use of sawdust or similar combustible materials to soak up combustible or flammable liquids spilled or dropped from machinery or processes on any floor is prohibited.
4.2 Lighting and Heat Producing Equipment. Proper clearances shall be maintained between heating and lighting equipment and ordinary combustibles in accordance with these Regulations. In the absence of a specific regulation, the State Fire Marshal shall designate proper clearances based on sound engineering judgment. Lighting and heating processes and equipment utilizing flammable or combustible liquids shall be designed in accordance with these Regulations.
4.3 General Use of Combustible And Flammable Materials. Flammable or combustible materials shall not be used for decorative or display purposes in any part of a building occupied by the public in such a quantity or manner so as to constitute a fire hazard unless such material is flame-proofed or fire retardant treated in a manner acceptable to the State Fire Marshal.
4.4 Disposal of Combustible Waste.
4.4.1 Combustible waste or refuse shall be properly stored or disposed of at the end of each working day, before vacating a building or premises, and whenever necessary to prevent creating a fire hazard. The term "properly stored or disposed of" shall mean removed from the building or to within a room or area specifically designed and approved for such storage.
4.4.2 Rubbish within Dumpsters
4.4.2.1 Dumpsters and containers with an individual capacity of 1½ cubic yards or more shall not be stored in buildings; or placed within 10 feet of combustible walls, openings, or combustible roof eave lines.
4.4.2.2 Structures of Types I and Type II construction (as defined in NFPA 220) used for dumpster or container storage shall be located not less than 10 ft from openings and other buildings.
5.1 Fire Extinguishing Capabilities. Fire extinguishing capabilities approved by the State Fire Marshal shall be provided at waste disposal sites including, but not limited to, fire extinguishers, water supply and hose, and earth moving equipment.
5.2 Dumping of Burning Load Prohibited. Burning debris shall not be dumped at a waste disposal site except at a remote location on the site where fire extinguishment can be accomplished before compacting, covering, or other disposal activity is carried out.
5.3 Transportation of Combustible Waste and Refuse. Vehicles or conveyances used to transport combustible waste or refuse over public thoroughfares shall have all cargo space covered and maintained sufficiently tight to ensure against ignition from external fire sources and scattering burning and combustible debris which may come in contact with ignition sources. Transporting burning waste or refuse is prohibited.
5.4 Waste Handling Plants. All structures housing operations which are involved primarily in the handling, storage, or baling of combustible waste materials shall be equipped with an automatic fire extinguishing system installed in accordance with these Regulations.
6.1 General Requirements.
6.1.1 Means of Egress. Means of egress shall be provided and maintained in accordance with the applicable provisions of these Regulations.
6.2 Storage on Roofs and Fire Escape Balconies. No person shall place or maintain upon any roof or fire escape balcony any materials or objects which may interfere with egress or fire department operations.
6.3 Attachments to Fire Escapes and Fire Protection Equipment. No person shall attach or fasten any rope, wire, cable, or similar device, to any part of any fire escape, standpipe, auxiliary fire fighting equipment, appliance, or other apparatus.
6.4 Responsibility to Prevent Overcrowding. The manager or person in charge of the premises shall be responsible for preventing overcrowding as specified by the State Fire Marshal. At no time shall the posted occupant load, as established by the Office of the State Fire Marshal, be exceeded within any building or premise.
6.5 Obstruction of Aisles and Passageways. No person shall block, impede, or obstruct any aisle, passageway, hallway, lobby, foyer, or stairway leading to or from any entrance or exit required by law which will prevent, delay, hinder, or interfere with the free use of such passageway by any person. Special security or security devices which affect the exiting shall be subject to the approval of the State Fire Marshal.
6.6 Failure to Vacate. No person shall fail to leave any premises which are overcrowded when told to do so by the management of the premises or any authorized enforcement officer.
7.1 Fire Retardants. The provisions of 7.2 and 7.3 of this Chapter shall be applicable to all chemical formulations, paints, coatings, or other finishes which are sold, offered for sale, or advertised, and which purport to reduce the surface flamespread rating or to reduce or eliminate combustible characteristics of furnishings and structures.
7.2 Approval and Tests. No person shall sell, or offer for sale, any chemical formulation, paint, coating, or other finish which purports to reduce flame-spread rating or to reduce or eliminate combustible characteristics of furnishings or structures that have not been approved by the State Fire Marshal.
|
Note: Listing by a nationally recognized testing agency or laboratory accepted by the State Fire Marshal constitutes, in this case, State Fire Marshal approval.
|
7.3 Applicators of Fire Retardant Coatings. Every applicator of fire retardant coating shall certify to the State Fire Marshal that applications of such coatings comply with the manufacturer's specifications.
8.1 General Use of Combustible Decorations. No person shall install, maintain, or use vegetation, bunting, cotton batting, plastic cloth, textile, excelsior, paper, or other combustible material for the purpose of decoration in any building, premises, vehicle, or marine vessel to which the public is admitted or invited unless such decorative materials have been made flame resistant with an approved flame retardant material or process in accordance with applicable NFPA Codes and Standards adopted and/or modified by these Regulations.
8.2 Fire Tests. Tests for determining flammability of combustible decorations shall be conducted in accordance with applicable tests for the type of combustible decoration involved.
8.3 Interior Finishes. Textiles, paper, or other combustible materials adhered to walls and ceilings, (not free hanging) must comply with the interior finish requirements of the applicable codes and standards listed in Regulation 701, Annex A.
8.4 Christmas Trees.
8.4.1 Natural cut Christmas trees, including living trees in a balled condition with their roots protected by an earth ball, shall not be permitted in Assembly, Educational, Health Care, Residential Board and Care, Detention and Correctional, Mercantile, Hotel, or Dormitory occupancies.
8.4.2 Artificial Christmas trees shall be labeled or otherwise identified or certified by the manufacturer as being "flame retardant" or "flame resistive."
8.4.3 No Christmas trees shall be allowed to obstruct exits in any way or be located in corridors, exit ways, or other means of egress.
8.4.4 Only listed electrical lights and wiring shall be used on Christmas trees and similar decorations.
8.4.5 Electrical lights are prohibited on metal artificial trees.
8.4.6 Open flames such as from candles, lanterns, kerosene heaters, and gas fired heaters shall not be located on or near Christmas trees or other similar combustible materials.
8.4.7 Natural cut Christmas trees shall not be located near heating vents or other fixed or portable heating devices that could cause the tree to dry out prematurely or to be ignited.
8.4.8 In occupancies where natural trees are permitted, the bottom end of the trunk shall be cut-off at an angle at least one to two inches (1-2”) above the end to help the tree absorb water. The tree shall be placed in a suitable stand with adequate water. The water level shall be checked and maintained on a daily basis. The tree shall be removed from the building immediately upon evidence of dryness.
9.1 Portable Fire Extinguishers. Portable fire extinguishers shall be installed in all buildings in accordance with the provisions of the Standard for Portable Fire Extinguishers, NFPA 10, as adopted and/or modified by these Regulations.
9.2 Automatic Fire Extinguishing Systems, Automatic Sprinkler Systems and Standpipes. Automatic fire extinguishing systems, automatic sprinkler systems, and standpipes shall be required as set forth in these Regulations.
9.3 Maintenance of Equipment. All systems, equipment, tanks, piping, devices, appliances, controls, or storage facilities, over which these Regulations contain regulatory provisions, shall be maintained in operative condition at all times to provide the service for which installed.
9.4 Water Supply and Fire Hydrants. The State Fire Marshal may require that all premises, other than one- and two-family dwellings, be provided with a water supply system installed in accordance with these Regulations.
10.1 Flammable and combustible liquids shall be stored, handled, and used in accordance with the applicable provisions of the codes and standards as adopted and/or modified by these Regulations.
10.2 Transportation of flammable and combustible liquids shall comply with the provisions of The Hazardous Materials Transportation Act as provided in 29 Del.C., §8223 through §8230.
11.1 Compressed and liquefied gases shall be stored, handled, transported, and used in accordance with the applicable provisions of the codes and standards as adopted and/or modified by these Regulations.
11.2 Storage and handling of compressed and liquefied gases not covered by the above referenced codes and standards shall comply with applicable provisions of:
11.2.1 Standards of the American National Standards Institute (ANSI);
11.2.2 Code of Federal Regulations, Title 49, Parts 173 through 190 (transportation);
11.2.3 Pressure Vessels, section VIII of the American Society of Mechanical Engineers Boiler and Pressure Vessel Code (container fabrication); or
11.2.4 The container fabrication specifications of the American Petroleum Institute.
12.1 Applicability.
12.1.1 This section shall be applicable only to those operations or occupancies involving combustible dusts which are not otherwise regulated by an applicable NFPA code or standard as adopted and/or modified by these Regulations.
12.2 General Requirements.
12.2.1 The accumulation of dust in quantities sufficient to create a fire or explosion hazard on electric motors, walls, ledges, or other interior surfaces, or on the roof of any building on which dust may settle is prohibited. Metallic dust shall be stored in tightly covered metal containers in a cool, dry place.
12.2.2 Every plant, factory, workshop, or other premises in which dust is produced as a product or as a result of operations in the production of other products in such quantities as to create a possible fire or explosion hazard, shall be equipped and maintained with an approved pneumatic or mechanical dust collection system designed, maintained, and operated in accordance with applicable NFPA codes and standards as adopted and/or modified by these Regulations.
12.2.3 All dust-producing or dust-agitation machinery, such as grinding mills and separators, and all elevators, elevator legs, spouts, hoppers, and other conveyors shall be provided with casings or enclosures maintained as nearly dust-tight as possible.
12.2.4 Approved magnetic or pneumatic separators shall be installed ahead of all shellers, crackers, crushers, grinding machines, pulverizers, and similar machines in which the entrance of foreign materials may cause sparks to be generated.
12.2.5 All machinery and metal parts of the crushing, drying, pulverizing, and conveying systems shall be electrically grounded.
12.3 Explosion Prevention and Suppression.
12.3.1 Dust explosion hazards shall be minimized by use of appropriate control measures as set forth in the applicable NFPA codes and standards as adopted and/or modified by these Regulations. The Standard on Explosion Prevention Systems, NFPA 69, and Guide for Venting of Deflagrations, NFPA 68, may be used to meet the requirements of this paragraph with due regard to the precautionary measures contained in these publications.
12.4 Sources of Ignition.
12.4.1 Smoking and Open Flames. Smoking and the carrying of matches, the use of heating, or other devices employing an open flame, or the use of any spark-producing equipment is prohibited in areas containing dust-producing, and/or dust-agitation operations.
12.4.2 Electrical Power and Lighting. Artificial lighting in areas containing dust-producing or dust-agitation operations shall be by electricity. All electrical wiring and equipment in such areas shall be installed in accordance with the provisions of the National Electrical Code, NFPA 70, for Class II Hazardous Locations. The State Fire Marshal shall be responsible for designating the areas requiring hazardous location electrical classification and shall classify the area in accordance with the classification system set forth in the National Electrical Code, NFPA 70, as adopted and/or modified by these Regulations.
12.4.3 Portable Fire Extinguishers Required. Portable fire extinguishers shall be installed for extra hazard occupancy protection.
13.1 Applicability. This section shall apply to hazardous materials not covered under the NFPA codes and standards adopted and/or modified by these Regulations.
13.2 Matches.
13.2.1 Type Permitted. Matches permitted under this Regulation shall be capable of withstanding a temperature of 200 degrees Fahrenheit for eight (8) consecutive hours without igniting in a standard laboratory test.
13.2.2 Packaging and Labeling. Matches shall be labeled and packed in conformance with U.S. Department of Transportation specifications.
13.2.3 Storage Requirements. Matches in excess of 50 pounds, including the containers, shall not be stored within ten feet (10’) of any open elevator shaft, elevator shaft opening, open stairway, or other vertical opening.
13.2.4 Sources of Ignition. Matches shall not be within ten feet (10’) of any boiler, furnace, stove, open flame, or similar source of ignition.
13.2.5 Storage at Wholesale Outlets. For storage at wholesale establishments and other locations where containers of matches are stored in piles exceeding 100 cubic feet, such containers shall be arranged so as not to exceed ten feet (10’) in height nor 1500 cubic feet in volume with aisles at least eight feet (8’) wide.
13.2.6 Match Storage With Other Commodities. When case lots of matches are stored in the same room with other materials or commodities, they shall be separated therefrom by a clear space of not less than eight feet (8’).
13.3 Storage of Hazardous Materials.
13.3.1 Hazardous materials which, when mixed, react violently or evolve toxic vapors or gases or which, in combination, become hazardous by reason of toxicity, oxidizing power, flammability, or other properties shall be separated from each other in storage by distance, partitions or other approved manner so as to preclude accidental contact between them.
13.4 Warning Signs.
13.4.1 The State Fire Marshal may require warning signs wherever hazardous materials are stored or processed or handled. Such warning signs shall be conspicuously lettered in accordance with the Standard System for the Identification of the Fire Hazards of Materials for Emergency Response, NFPA 704, as adopted and/or modified by these Regulations.
13.5 Transportation of Hazardous Materials.
13.5.1 Transportation of hazardous materials shall comply with the provisions of The Hazardous Materials Transportation Act as provided in 29 Del.C., §8223 through §8230.
|
Note: This section provides two options for occupancies where exhibits, displays, craft shows, trade shows, etc., can obtain permits for individual events.
(1) Obtain an annual license to do so and file an application for a permit for each event where the floor plan or specifications may not be able to be defined or shown to be permanent. This provision calls for a thirty (30) day notice to the State Fire Marshal and a floor plan or specification for each event.
(2) Obtain an annual license to do so and provide a floor plan or specification seeking an approval from the State Fire Marshal for such area used for all events to be held during the annual license period. This provision allows a five (5) day notice prior to the scheduled opening of an event to the State Fire Marshal.
|
14.1 All covered malls and Class "A" places of assembly where exhibits, displays, craft shows, trade shows, etc., that are of a temporary duration, shall obtain an annual license from the State Fire Marshal, to conduct or hold such operations.
14.2 Any covered mall and Class "A" places of assembly required under §14.1 of this Chapter to have an annual license to engage in such operations, shall obtain from the State Fire Marshal, a permit for each such exhibit, display, craft show, trade show, etc., that is held.
14.3 Such licenses and permits required in this section will be on forms provided by the State Fire Marshal.
14.3.1 The license year period shall expire on a date as scheduled by the State Fire Marshal, pursuant to the provisions of 16 Del.C. §6612(g)(5)(d).
14.3.2 Permits will be valid for the dates indicated and will coincide with the scheduled dates of the exhibit, display, craft show, trade show, etc.
14.4 In order to secure a permit as required in §14.3 of this Chapter, the owner of such covered mall and Class "A" places of assembly shall submit an application for such permit to the State Fire Marshal, at least 30 days prior to the scheduled opening of the event.
14.4.1 Accompanying the application for permit as described in this section, the owner will submit a floor plan detailing the location or positioning of all displays, exhibits, etc., detailing the number and width of all aisleways, required means of egress, and exits.
14.5 The State Fire Marshal will inspect the location of the covered mall and Class "A" places of assembly to ensure that the arrangement of all such displays, exhibits, etc., are in compliance with the floor plan as submitted with the application for the permit.
14.6 The owner of the covered mall and Class "A" places of assembly is responsible to ensure that all provisions of the State Fire Prevention Regulations are complied with during such times as the display, exhibit, etc., are open to the attendees.
14.7 Any violations of the State Fire Prevention Regulations with respect to this section shall be remedied and/or action taken by the State Fire Marshal as provided for in the State Fire Prevention Regulations or found in 16 Del.C., Chapter 66.
14.8 In the administration of this section, the State Fire Marshal, for those occupancies who have obtained an annual license under this Chapter may:
14.8.1 Accept a floor plan or specifications from the applicant, that will detail an area or section of the occupancy that may be designated by the State Fire Marshal to be utilized for the exhibits, displays, craft shows, trade shows, etc., such approval to be in effect for the period for which the annual license is issued. Such designated floor plans or specifications will relieve the applicant from submitting an individual floor plan or specification for each individual exhibit, display, craft show, trade show, etc., as long as only the approved, designated area or space is utilized.
14.8.2 Such floor plans or specifications in §14.8.1 shall detail the location and identification of all means of egress, exits, and such areas to be maintained clear under the provisions of the State Fire Prevention Regulations.
14.9 For those occupancies, who comply with the provisions of §14.8 of this Chapter, the application for the permit for each individual exhibit, display, craft show, trade show, etc., is to be submitted to the State Fire Marshal no later than five (5) days prior to the scheduled opening of the event.
15.1 All passenger elevators in a building shall be provided with a cab sized to accommodate an ambulance cot 24 inches by 76 inches in its horizontal open position.
|
Note: The words “to accommodate” in this context is intended to mean the cot is in the horizontal position and shall travel in to the elevator without having to modify the position. Additionally once the cot is in place in the cab, there should be room for at least two (2) EMS attendants.
|
15.2 For elevators in high rise buildings, the requirements of Regulation 702, Chapter 5, §2.6 shall also apply.
1.1 This Chapter shall apply to all occupancies including one- and two-family dwellings.
1.2 All electrical conductors and equipment installed after the adoption of these Regulations shall conform to the applicable NFPA codes and standards as adopted and/or modified by these Regulations.
1.3 All electrical conductors and wiring shall be inspected and approved by an electrical inspection agency approved by the State Board of Electrical Examiners and recognized by the State Fire Marshal, prior to occupancy.
1.4 For the purpose of electrical inspections under this Chapter electrical conductors and equipment includes those portions of fire protection systems that incorporate electrical current carrying wiring and devices.
2.1 A letter of approval of electrical inspection issued by an electrical inspection agency approved by the State Board of Electrical Examiners and recognized by the State Fire Marshal shall be filed every three (3) years with the Office of the State Fire Marshal for the following occupancies:
2.1.1 Health-Care, and;
2.1.2 Day-Care, and;
2.1.3 Correction and Detention, and;
2.1.4 Education, including their classroom buildings, administration buildings, gymnasiums, auditoriums, and dormitories, and;
2.1.5 Bed and Breakfasts, Country Inns, Guest Houses, and;
2.1.6 Lodging, Rooming and Boarding Houses, and;
2.1.7 Hotels, Motels, and Dormitories.
2.2 Assembly occupancies shall file every five (5) years with the Office of the State Fire Marshal a letter of approval of electrical inspection issued by an electrical inspection agency approved by the State Board of Electrical Examiners and recognized by the State Fire Marshal.
3.1 Amusement rides shall have an electrical inspection each time that ride is set up for operation.
3.2 A letter of approval of electrical inspection issued by an electrical inspection agency approved by the State Board of Electrical Examiners and recognized by the State Fire Marshal shall be filed with the Office of the State Fire Marshal.
An electrical inspection on any property may be ordered by written violation notice when deemed necessary by the State Fire Marshal. Such electrical inspection shall be performed by an electrical inspection agency approved by the Board of Electrical Examiners and recognized by the State Fire Marshal and a report shall be filed with the Office of the State Fire Marshal.
Symbol Of Testing Laboratory Required. A person may not sell or distribute an electrical consumer product which is intended ultimately for the personal use of a consumer in or around a permanent or temporary household or residence, unless the product is clearly labeled, marked, or stamped with the symbol of an electrical testing laboratory which is certified by the State Fire Marshal to test products to determine that they are safe for use.
1.1 A plan showing the capacity and location of exit ways and aisles leading thereto shall be submitted for approval to the State Fire Marshal and an approved copy shall be displayed on the premises of all indoor theaters.
1.2 Every indoor motion picture theater shall furnish and have flashed on the screen prior to each show the above exit plan.
2.1 There shall be conspicuously posted in motels and hotels, in each sleeping room, a plan of all exits and fire escapes, detailing the path of egress from said room and the location of each fire alarm station along that path.
In addition to the requirements of the Standard for Fire Safety Criteria for Manufactured Home Installations, Sites, and Communities, NFPA 501A, as adopted and/or modified by these Regulations, every manufactured home installation, site, and/or community owner or operator shall furnish to the Emergency Dispatch Center having jurisdiction a plot plan of the installation, site, and/or community showing the manufactured home installation. The owner or operator shall also assign numbers to all manufactured homes in a consecutive order and place or have placed the assigned number in a readily visible location on each manufactured home, to eliminate any confusion in the event emergency service, fire, police, or ambulance is needed.
1.1 Scope.
1.1.1 This Chapter establishes the minimum requirements for the design criteria for the marking of fire lanes so as to provide access by emergency services to buildings and structures; fire hydrants; standpipes and sprinkler connections; building exits.
1.1.2 This Chapter also establishes the minimum requirements for the design criteria for the marking of free and unobstructed areas or zones around fire hydrants; standpipe and sprinkler connections; building exits for access by emergency services and to prohibit the blocking of such areas.
1.1.3 The revisions to the Chapter that affect marking of fire lanes shall take effect on January 1, 2004.
1.2 Purpose.
1.2.1 The purpose of this Chapter is to provide for requirements that ensure a reasonable degree of operational access by emergency services to buildings and structures for those fire protection and life safety features routinely utilized by the emergency services.
1.3 Application.
1.3.1 This Chapter shall apply to all buildings.
1.3.1.1 >10,000 square feet in gross floor area OR
1.3.1.2 3 or more stories OR over 35 feet in height OR
1.3.1.3 Whose primary occupancy is classified as "High Hazard"
1.3.2 This Chapter shall apply to all new buildings or additions AND buildings undergoing a change in occupancy as specified in Regulation 701, Chapter 1.
1.3.3 This Chapter does not apply to:
1.3.3.1 One- and two-family dwellings as defined in Regulation 701, Chapter 1.
1.3.3.2 Residential units occupied as one- and two-family units when constructed in a "townhouse" configuration.
1.3.4 Where, in the opinion of the State Fire Marshal, an occupancy’s fire protection features are such that fire lanes do not contribute to the overall level of life safety and/or property conservation, the State Fire Marshal may modify the requirements of this Chapter. Such occupancies shall be identified on a case by case basis and listed by the State Fire Marshal.
|
Note: The intent of this section is to allow the State Fire Marshal, on a case by case basis, to modify the fire lane requirements based on the occupancy’s site configuration, building size and construction, occupancy classification, and internal features of fire protection, such as fire alarm signaling and fire suppression systems.
|
1.3.5 Existing Buildings. In the case of a building constructed prior to the adoption of this Regulation, this Regulation is not intended to require the degree of access as required for new buildings, but this Regulation does require that access be provided and marked for existing buildings, ON A CASE BY CASE BASIS, as determined by the State Fire Marshal.
1.3.6 "Existing" in the context of this section means that the building was already constructed prior to a fire lane regulation being promulgated, prior to the 1981 Regulations. The State Fire Marshal shall determine the minimum access and marking required based on the building occupancy, size, and height.
1.4 Definitions.
1.4.1 The definitions as found in this section shall be in addition to the definitions found in other sections of these Regulations and shall be applicable to Regulation 705, Chapter 5.
“Fire Lane”. A paved roadway surface that provides unobstructed access to a building for Fire Department apparatus and any other emergency vehicles at all times.
“Building Height”. Shall be measured from the lowest level of fire department vehicle access to the floor of the highest occupiable story.
“Edge of Roadway”. Shall be defined as:
“High Hazard Occupancy”. Any building or area classified as high hazard within the Life Safety Code, NFPA 101, or as Extra Hazard within the Standard for the Installation of Sprinkler Systems, NFPA 13.
“Yellow Color”. The specific color yellow shall be uniformly accepted yellow as utilized by State of Delaware Department of Transportation (DelDOT).
2.1 Every building, structure or property shall be provided with sufficient emergency access to and from both primary and secondary entrances, exits, and necessary equipment such as fire hydrants, fire department connections, drafting pads, and like items.
2.2 All fire lanes, standpipe and sprinkler connections, hydrants and exits shall be clearly marked in accordance with applicable sections of this Chapter.
2.3 All emergency access connections shall be continuously maintained free of all obstructions or impediments allowing full and instant use in case of an emergency.
2.4 Every fire lane, fire hydrant, fire department connection, and other like items shall be maintained by the property owner to such a degree so as to keep said equipment properly marked, accessible, and visible at all times.
2.5 Where, in the absence of specific instructions, signs or other notification, the color yellow shall denote "NO PARKING."
2.6 Where required by this regulation, fire lanes, standpipe and sprinkler connections, hydrants and exits shall use demarcation lines to define specific areas.
2.7 All demarcation lines shall be a minimum of four inches (4”) in width.
2.8 All demarcation lines shall be yellow in color and only a vivid and durable paint shall be used which is suitable for road surfaces.
2.9 Enforcement action to require the appropriate design and marking of fire lanes, etc. as required in this Regulation shall be as prescribed in 16 Del.C. §6611.
2.10 Enforcement action regarding stopping, standing or parking a vehicle in a fire lane shall be as prescribed in 21 Del.C. §4179 and/or 21 Del.C. §7001.
2.11 Enforcement action regarding stopping, standing or parking a vehicle within 15 feet of a fire hydrant shall be as prescribed in this regulation and 21 Del.C. §7001 and/or 21 Del.C. §4179.
2.12 Three copies of an independent and specific record type plan shall be submitted to the Office of the State Fire Marshal providing specific identification and marking details of access roadways, fire lanes, fire department connections and fire hydrants.
3.1 Where emergency services have to utilize access roadways between public streets or roads to reach designated fire lanes, such access roadways shall be a minimum of 24 feet in width and constructed to meet the minimum engineering specifications and/or requirements pursuant to the Delaware Department of Transportation requirements for paved roadways.
3.2 Access roadways with no parking on one or both sides shall be marked as follows:
3.2.1 Curbs painted yellow or yellow demarcation lines
3.2.2 Signs posted along the curb, building line, or side of the roadway placed at each end of the access roadway and spaced at 150 foot intervals maximum; all signs shall be located no less than six feet and no higher than eight feet above the pavement.
3.3 Access roadways with parking on both sides shall not require marking.
4.1 Design and location of fire lanes around buildings, structures or properties are dependent on many considerations, such as occupancy, building height, construction, property grades, etc. As a result, only those persons having a good working knowledge of fire department operations and equipment limitations should determine fire lane locations. The following criteria shall be followed to effect a proposed design for submittal to the State Fire Marshal or his duly authorized representative for review and approval.
4.2 Primary fire lanes shall be a minimum 24 feet in width.
4.3 Secondary fire lanes shall be a minimum 16 feet in width.
4.4 The minimum width of primary and/or secondary fire lanes may be reduced when, in the opinion of the State Fire Marshal, the reduced width will not impact on the accessibility of fire department emergency vehicles.
4.5 Fire lanes shall be constructed to meet the minimum engineering specifications and/or requirements pursuant to the Delaware Department of Transportation requirements for paved roadways.
4.6 "Speed Bumps" or any other like device used to reduce vehicle speed will be installed pursuant to the State of Delaware Department of Transportation specifications.
4.7 No parking shall be permitted between a primary fire lane and the building. One row of parking shall be permitted between a secondary fire lane and the building.
4.8 Overhangs, canopies, balconies, or any other building feature shall not project over any primary or secondary fire lane.
5.1 Primary fire lanes shall be required to run along the "front of the building" as determined by the primary entrance/exit, windows, balconies, etc. In cases where there is more than one primary entrance/exit, each shall be served by a primary fire lane even if this exceeds the accessibility percentage as required in Table 1.
5.2 Secondary fire lanes are acceptable to achieve the remaining required perimeter accessibility percentage and to provide access to fire department connections and secondary exits.
5.3 The closest edge of fire lanes, both primary and secondary, shall not be located closer than ten feet (10’) from an exterior wall.
5.4 The closest edge of fire lanes, both primary and secondary, shall not be located further than 50 feet from an exterior wall if one or two stories; 40 feet if three or four stories and 30 feet if over four stories in height.
6.1 General.
6.1.1 All fire lanes, standpipe and sprinkler connections, hydrants and exits shall be marked as prescribed within the appropriate section of this Chapter and as illustrated by the appropriate figures of this Chapter.
6.1.2 Fire lanes with no parking between the fire lane and the building shall be marked as follows:
6.1.2.1 Curbs painted yellow or 4 inch yellow demarcation lines as follows:
6.1.2.1.1 Both the inner and outer edges of the fire lane marked with curbs painted yellow, or
6.1.2.1.2 The inner edge of the fire lane marked with a curb painted yellow and the outer edge of the fire lane marked with a four inch (4”) yellow demarcation line, or
6.1.2.1.3 The inner edge of the fire lane marked with a four inch (4”) yellow demarcation line and the outer edge of the fire lane marked with a curb painted yellow, or
6.1.2.1.4 Both the inner and outer edges of the fire lane marked with four inch (4”) yellow demarcation lines.
6.1.2.2 Signs, shall be posted along the inner curb, building line, or edge of the roadway placed at each end of the fire lane and spaced at 150 foot intervals maximum. All signs shall be located no less than six feet and no higher than eight feet above the pavement.
6.1.2.3 Where the four inch yellow demarcation line of the outer edge of a fire lane intersects an access roadway or parking lot aisle, it may be marked as follows.
6.1.2.3.1 A solid four inch yellow demarcation line may continue to run across the intersection of the access roadway or parking lot aisle, or
6.1.2.3.2 A broken (intermittent) four inch yellow demarcation line may continue to run across the intersection of the access roadway or parking lot aisle, or
6.1.2.3.3 The solid four inch yellow demarcation line may be omitted at the intersection of the access roadway or parking lot aisle but shall continue for the remainder of the fire lane where it does not intersect an access roadway or parking lot aisle.
6.1.3 Fire lanes with permitted parking between the fire lane and the building shall be marked as follows:
6.1.3.1 4 inch yellow demarcation lines on both the inner edge and outer edge of the fire lane(s).
6.1.3.2 Roadway markings shall utilize the words "FIRE" and "LANE" and shall conform to the following specifications.
6.1.3.2.1 The first word "FIRE" shall be closest to a driver approaching such marking;
6.1.3.2.2 Each word shall be at least ten feet in height and 20 feet or 12 feet in width, on center, conforming to the width of the fire lane so as to define the location of the fire lane;
6.1.3.2.3 This distance between the word "FIRE" and the word "LANE" shall be no greater than 30 feet; and
6.1.3.2.4 The distance from the word "LANE" to the beginning of the second set of roadway markings where the word "FIRE" begins shall be no greater than 100 feet.
7.1 Perimeter accessibility is calculated based on building occupancy, height, and internal fire protection features.
7.2 Table 1 shall be used in determining perimeter accessibility.
7.3 Table 1 shall be used as a guide for existing buildings with required accessibility to be determined on a case by case basis based upon operations and protection features.
7.4 Perimeter accessibility may be reduced by up to 50 percent when the building is completely protected by an automatic sprinkler system installed pursuant to the specifications and standards of the Standard for the Installation of Sprinkler Systems, NFPA 13, as adopted and/or modified by these Regulations.
8.1 Forestry lanes may be utilized where, in the opinion of the State Fire Marshal, conditions and protection features warrant a reduced level of accessibility.
8.2 Forestry lanes shall be a minimum of 16 feet in width.
8.3 Forestry lanes shall be constructed of no less than six inches (6”) of crusher run on a well compacted base of select material with a two inch (2”) maximum cover of top soil and seed.
8.4 All forestry lanes shall be marked by use of no smaller than three foot (3’) and no longer than five foot (5’) trees or shrubs spaced 20 feet on center. Trees and shrubs of the same size and type shall be placed at the end of the forestry lane to denote its end.
8.5 When and where permitted, forestry lanes shall be designed and marked on an individual case by case basis.
9.1 All exits shall be marked as prescribed within the appropriate section of this Chapter and as illustrated by the appropriate figures of this Chapter.
9.2 All exits shall have demarcation lines of at least four inch (4”) minimum width to define specific areas.
9.3 Demarcation lines shall be yellow in color and only a vivid and durable paint shall be used which is suitable for road surfaces.
9.4 Demarcation lines on secondary exits shall be measured from the center line of the exit way and shall extend for a distance of six feet (6’) on either side to the public way (fire lane).
9.5 Demarcation lines need not be located on sidewalk surfaces or other pedestrian surfaces not subject to vehicular traffic but shall extend from the end of the sidewalk surface to the fire lane.
9.6 No objects, stands, displays, or other impediments shall be located within the demarcation area.
9.7 When required by the State Fire Marshal, minimum four inch (4”) diameter steel bollards filled with concrete and painted yellow shall be installed at the corners of the exit’s demarcation area. The minimum height of the bollard shall be thirty six inches (36") above the finished grade of the adjacent surface.
10.1 All fire hydrants shall be marked as prescribed within the appropriate section of this Chapter and as illustrated by the appropriate figures of this Chapter.
10.2 When fire hydrants are located along the curb line, the area between the fire hydrant and the fire lane shall be stenciled with 4 inch (4”) demarcation lines and the words "NO PARKING" which shall extend to a distance of 15 feet on either side to be measured from the center line of the fire hydrant.
Note: See Figure Five – Marking of Fire Hydrant Along a Curb Line
10.3 Where fire hydrants are located on a curb island extension in such a manner that the hydrant is directly accessible to the access or fire lane, it will only be necessary to paint the curb island extension for the distance it traverses the access lane.
Note: See Figure Seven - Marking of Fire Hydrant on a Curb Island Extension
10.4 The distance between a fire hydrant and the nearest demarcation line of a fire lane shall not be greater than seven feet (7’) unless an alternate distance is approved by the State Fire Marshal.
10.5 The steamer connection of all fire hydrants shall be so positioned so as to be facing the fire lane.
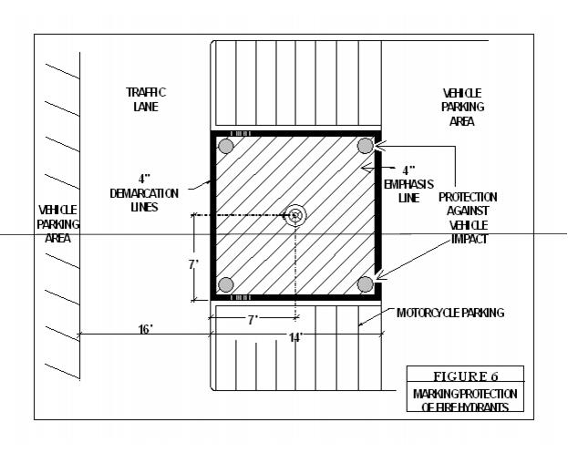
10.6 Where fire hydrants are located in parking lots or other areas susceptible to blockage by parked vehicles they shall be treated as follows:
10.6.1 Fire hydrants shall be protected in all directions for a distance of seven feet (7’) with barriers or curbing
Note: See Figure Seven – Marking of Fire Hydrant on a Curb Island Extension
10.6.2 An access roadway with a minimum of 16 feet shall run through the parking area and adjacent to the demarcation area of the fire hydrant.
10.6.3 The access roadway in (b) above shall extend "from" and "to" a traffic lane.
10.6.4 All fire hydrants shall have demarcation lines to define specific areas. All demarcation lines shall be yellow in color and only a vivid and durable paint shall be used which is suitable for road surfaces.
10.6.5 Minimum four inch (4”) diameter steel bollards filled with concrete and painted yellow shall be installed at the corners of the fire hydrant demarcation area. The minimum height of the bollard shall be thirty six inches (36") above the finished grade of the adjacent surface.
10.7 Where fire hydrants are located in parking lots on a curb island extension in such a manner that the hydrant is directly accessible to the access or fire lane, it will only be necessary to paint the curb island extension for the distance it traverses the access lane.
10.8 All fire hydrants shall have demarcation lines to define specific areas.
10.9 All demarcation lines shall be a minimum of four inches (4”) in width.
10.10 All demarcation lines shall be yellow in color and only a vivid and durable paint shall be used which is suitable for road surfaces.
10.11 Four inch steel bollards filled with concrete and painted yellow shall be installed at the corners of the fire hydrant demarcation area.
11.1 All standpipe and sprinkler connections shall be marked as prescribed within the appropriate section of this Chapter and as illustrated by the appropriate figures of this Chapter.
11.2 Demarcation lines shall be measured from the center line of connection and extend for a distance of four feet (4’) on either side.
11.3 Demarcation lines need not be located on sidewalk surfaces but should extend from the end of the sidewalk surface to the fire lane.
11.4 No objects, stands, displays, or other impediments shall be located within the demarcation area.
11.5 All fire department connections (standpipe and sprinkler) and other such like items shall have demarcation lines and shall include the words “NO PARKING” to define specific areas.
11.6 All demarcation lines shall be a minimum of four inches (4”) in width.
11.7 All demarcation lines shall be yellow in color and only a vivid and durable paint shall be used which is suitable for road surfaces.
11.8 When required by the State Fire Marshal, minimum four inch (4”) diameter steel bollards filled with concrete and painted yellow shall be installed at the corners of the demarcation area for the fire department connections. The minimum height of the bollard shall be thirty six inches (36") above the finished grade of the adjacent surface.
11.9 All fire department connections (standpipe and sprinkler) shall have a minimum 12” x 18” sign that reads:
Sign lettering shall be a minimum of 3 inches (3”) in height with red scotchlite letters on white scotchlite background. The sign shall be clearly visible from the fire lane or roadway.
1.1 Scope.
1.1.1 This chapter shall apply to all buildings and /or facilities which may require the response of emergency personnel.
1.2 Purpose.
1.2.1 The purpose of this chapter is to ensure access to buildings and other facilities for the purpose of providing emergency services. Access for emergency vehicles shall be provided by means of streets, roads, alleys, access roadways, and/or dedicated fire lanes.
1.3 Application.
1.3.1 This chapter shall apply to all new buildings, structures, or additions as specified in Regulation 701.
1.3.2 In the case of an existing building undergoing an occupancy change, the existing building shall comply with these Regulations and shall be reviewed under the provisions of Section 9.0.
1.4 Definitions.
1.4.1 For specific definitions, see Regulation 701, Chapter 2. The definitions as found in this section shall be in addition to the definitions found in other sections of these Regulations and shall be applicable to this chapter.
Access Roadway – A private non-dedicated roadway that connects a public street with a fire lane.
Bifurcated Access Roadway – An access roadway or street constructed with an entrance lane and exit lane separated by a planting, island, or other physical barrier.
Building Access – Access to a building’s exterior entrances, exits and other safety equipment (i.e. fire department connections, fire hydrants, etc) that will allow emergency services to access the building or equipment within a reasonable distance from parked emergency vehicles.
Fire Lane – A street that provides access to a building for Emergency Services Apparatus at all times.
Edge of Street – Shall be base of curb, the outer edge of pavement, or the outer edge of the designated fire lane.
Emergency Services Access – That portion of accessibility to any property which is necessary for emergency vehicles to gain access to fire protection equipment during an emergency condition.
Emergency Services – Shall include all fire and emergency services as regulated by the State Fire Prevention Commission.
Fire Lane Access – That portion of the building perimeter that is required to have fire lanes.
Perimeter Access – That portion of the building perimeter that is accessible by emergency services personnel and is within 100 feet of a street and capable of supporting fire ground operations.
Perimeter, Building – The measurement of the building's exterior walls along the largest horizontal projection of the roof or floor above.
Primary Entrance – The principle entrance or exit door to a building for use by emergency services.
Road – See Street
Street – A thoroughfare (street, avenue, road, fire lane or boulevard, etc.) which has been devoted for vehicular use by the public and shall be permitted to be utilized for access by Emergency Services Apparatus. For the purpose of this Regulation, a street shall be a minimum of 14 feet in unobstructed clear width one or two way traffic.
Yellow Color – The specific color yellow shall be the uniformly accepted yellow as utilized by State of Delaware Department of Transportation (DelDOT). Only vivid and durable paint shall be used and shall be suitable for street surfaces.
2.1 All premises where emergency personnel may be called upon to provide emergency services, which are not readily accessible from streets, shall be provided with suitable gates, access roads, and fire lanes so that all buildings on the premises are accessible to emergency apparatus.
2.2 In the case of one- and two-family dwellings emergency service access shall be provided in such a manner so that emergency apparatus will be able to locate within 100 feet from the street to the primary entrance.
2.2.1 Where alleys are provided, pumpers shall be able to access all portions of the alley without strict restrictions for entrance radii.
2.3 Any dead end road more than 300 feet in length shall be provided with a turn-around or cul-de-sac arranged such that emergency apparatus will be able to turn around by making not more than one backing maneuver. The turn-around or cul-de-sac shall be arranged as follows:
2.3.1 Turn-around - Turn-arounds shall be arranged in accordance with one of the four standard designs shown in Figure 5-2, Figure 5-3, Figure 5-4 and Figure 5-5
2.3.2 Cul-de-sac - The minimum paved radius of a cul-de-sac is 38 feet unobstructed as shown in Figure 5-1.
Figure 5-1




2.4 A lock box containing any and all means necessary for fire department access shall be provided at the following occupancies:
2.4.1 Any occupancy that contains a fire alarm signaling system that is monitored off-site, or
2.4.2 Any occupancy that contains an automatic sprinkler system.
Exception No. 1: Where an occupancy has on-site 24 hour guard service or is operating on a manned 24 hour operational cycle.
Exception No.2: Where the fire department, in whose district the occupancy is located, indicates in writing to the State Fire Marshal that the lock box is not necessary.
Exception No. 3: One- and Two-Family dwellings.

2.5 The lock box, as specified in 2.4, shall be listed or approved by the State Fire Marshal for the intended use and installed in such a manner that the fire department will have access to the box.
2.5.1 The lock box shall contain any or all means needed for entry into the building or property.
2.5.2 Lock box contents shall be updated when tenants change, ownership changes, or any time locks are changed or re-keyed.
2.6 Gated Communities and Gated Commercial Properties
2.6.1 The requirements of this section shall apply to all new gates installed and for any gate replacing more than 50% of the hardware and software after September 13, 2004.
2.6.2 Fire Department access shall be provided to all otherwise inaccessible gated communities, subdivisions, developments, gated commercial properties or property by any other name through the use of a system or device approved by the Office of the State Fire Marshal after consultation with the local Fire Chief.
2.6.3 The system or device required in 2.6.2 shall be located in an area accessible to the fire department approved by the Office of the State Fire Marshal after consultation with the local Fire Chief.
2.6.3.1 A system shall consist of one manual and one automated means to open the gate. The owner or their representative shall meet with the local Fire Chief prior to submission to the Office of the State Fire Marshal to agree on the system. A letter of agreement shall be created, and signed by both parties. The letter shall include a detailed description of both the manual and automated means.
2.6.3.2 To be considered accessible for fire department apparatus the actual clear openings shall be not less than 14 feet, the paved surface through the gate shall be not less than 12 feet, and the gate shall be setback from the perpendicular street by at least 50 feet.
Exception: If the 50 foot setback above is not possible, the actual clear openings and the paved surface through the gate shall be made wider than set forth above in order to accommodate all responding emergency response apparatus.
2.6.3.3 Plans submitted to the Office of the State Fire Marshal shall be provided at 1:20, 1:30, 1:40, or 1:50 scale.
2.6.4 The owner and/or occupant of the property requiring fire department access as specified in 2.6.2 and 2.6.3 shall maintain the approved system or device in strict accordance with the manufacturer's guidelines.
2.6.5 The owner and/or occupant of the property requiring fire department access shall not modify access in any manner that could prevent fire department access without obtaining prior approval from the Office of the State Fire Marshal.

3.1 This section shall apply to buildings that do not require fire lanes but still require emergency services accessibility.
3.1.1 Buildings Requiring Accessibility by Occupancy
3.1.1.1 Assembly
3.1.1.2 Educational
3.1.1.3 Day Care
3.1.1.4 Health Care
3.1.1.5 Ambulatory Care
3.1.1.6 Detention and Correction
3.1.1.7 Residential, except one and two family
3.1.1.8 Any Mercantile exceeding 1,500 gross square feet
3.1.1.9 Any Business exceeding 1,500 gross square feet
3.1.1.10 Any Storage exceeding 1,500 gross square feet, or storing any Tier II hazardous materials as defined by the Department of Natural Resources and Environmental Control.
3.1.1.11 Any Industrial exceeding 1,500 gross square feet, or storing any Tier II hazardous materials as defined by the Department of Natural Resources and Environmental Control.
3.2 Building Access shall be in accordance with Table 5-1.
Table 5-1
Accessibility Table
TBDFM = To Be Determined in consultation with the Office of the State Fire Marshal.
1. For Mixed Use occupancies, accessibility shall be based on the floor with the individual occupancy requiring the greatest accessibility coverage.
2. Educational shall include educational assembly buildings with mixed uses and shall not be considered as mixed use.
3. For Day Care Homes, see 3.4.4.
3.3 The State Fire Marshal may consider other design criteria for existing properties in a traditional urban setting on an individual basis, based upon the nature and degree of hazard associated with the building and/or characteristics of the site.
3.4 Streets and Access Roadways shall be permitted to be utilized to achieve the required Building Access.
3.4.1 Building Access shall be no further than 50 feet from a primary entrance.
3.4.2 Where buildings are provided with an automatic sprinkler system installed in accordance with NFPA 13, access shall be no further than 100 feet from the primary entrance.
Note: See Figure 5-6 – Building Access – With No Fire Lane
3.4.3 Building Access shall be provided by a pervious or impervious surface which is capable of supporting the load of all emergency services apparatus and shall be designed in accordance with accepted engineering practices.
3.4.3.1 Where pervious surfaces are used for perimeter access, the design and location shall be evaluated by the local Fire Chief and approved by the Office of the State Fire Marshal.
3.4.4 In the case of a Day Care homes located in one- and two-family dwellings, emergency service access shall be provided in such a manner so that emergency apparatus can be positioned within 100 feet to the primary entrance.
3.5 Perimeter Access minimum width shall be 15 feet measured from the face of the building at grade with a maximum slope of ten percent (10%). Plantings and utility services (includes condenser units, transformers, etc.) shall be permitted within the perimeter access, and shall not interfere with emergency services fire ground operations.
3.5.1 If a physical barrier (fence, pond, steep slope, etc) prevents access, that portion of the building perimeter shall not be included in the calculation of Percent of Perimeter Access.
3.6 Access to fire protection systems shall meet the requirements of Chapter 6.
Note: See Figure 5-7 – Perimeter Access – With No Fire Lane
4.1 This section applies to all buildings:
4.1.1 Exceeding 10,000 gross square feet, or
4.1.2 Three (3) or more stories above grade, or
4.1.3 35 feet or more in height, or
4.1.4 Buildings housing or containing materials or processes classified as High Hazard.
4.2 Fire Lane Access and Perimeter Access shall be in accordance with Table 5-2.
4.2.1 In cases where Regulation 702, Chapter 4, Section 1.1.1, Exception 2 applies, or where no fire suppression system is provided, the following access shall apply:
4.2.1.1 Fire lane access shall be 50%.
4.2.1.2 Perimeter access shall be 100%.
Note: See Figure 5-8 – Fire Lane and Perimeter Access – Without Fire Suppression
4.3 The State Fire Marshal may consider other design criteria for existing properties in a traditional urban setting on an individual basis, based upon the nature and degree of hazard associated with the building and/or characteristics of the site.
4.4 Fire Lanes shall be provided and designed in accordance with Section 6.0 of this chapter and marked in accordance with Section 7.0 of this chapter.
4.5 Perimeter Access minimum width shall be 15 feet measured from the face of the building at grade with a maximum slope of ten percent (10%). Plantings and utility services (includes condenser units, transformers, etc.) shall be permitted within the perimeter access, provided they do not interfere with the emergency services fire ground operations.
4.5.1 If a physical barrier (fence, pond, steep slope, etc) prevents access, that portion of the building perimeter shall not be included in the calculation of Percent of Perimeter Access.
Note: See Figure 5-9 – Fire Lane and Perimeter Access with Fire Suppression
4.5.2 Percent of Perimeter Access requirements shall include the required Percent of Fire Lane Access requirements of Table 5-2.
Accessibility Table
Table 5-2
Percent of Fire Lanes | Percent of Perimeter Access | |||||
Number of Stories | 1-2 | 3-4 | > 4 | 1-2 | 3-4 | > 4 |
Height | up to 25’ | >25 to 50’ | > 50’ | up to 25’ | >25 to 50’ | > 50’ |
OCCUPANCY1 | ||||||
Assembly | 50 | 50 | 50 | N/A | N/A | 100 |
Educational2 | 50 | 75 | 75 | N/A | N/A | 100 |
Day Care Center | 25 | 50 | 75 | 50 | 75 | 100 |
Hospital | 50 | 75 | 75 | 100 | 100 | 100 |
Nursing Home | 25 | 50 | 75 | 75 | 75 | 100 |
Ambulatory Health Care | 25 | 25 | 50 | N/A | 50 | 75 |
Detention & Correction | TBDFM | TBDFM | TBDFM | TBDFM | TBDFM | TBDFM |
Residential | 25 | 35 | 75 | 50 | 75 | 100 |
Mercantile | 25 | 50 | 50 | 50 | 75 | 75 |
Business | 25 | 25 | 50 | N/A | 50 | 75 |
Industrial | 25 | TBDFM | TBDFM | 50 | TBDFM | TBDFM |
Storage | 25 | TBDFM | TBDFM | 50 | TBDFM | TBDFM |
TBDFM = To Be Determine in consultation with the Office of the State Fire Marshal.
1. For Mixed Use occupancies, accessibility shall be based on the floor with the individual occupancy requiring the greatest accessibility coverage.
2. Educational shall include educational buildings with mixed uses and shall not be considered as mixed use.
NOTE: For the purposes of this Regulation and application of the Accessibility Table, the fire lane portion was based upon a 100 foot Aerial reach and the width of aerial stabilizers. The Perimeter Access portion was based upon standard fire ground operations. |
5.1 Where emergency services apparatus have to utilize access roadways to reach designated fire lanes, such access roadways shall be constructed to meet the minimum engineering specifications and/or requirements pursuant to the Delaware Department of Transportation or local jurisdictions for paved roadways.
5.2 All access roadways shall be paved and be a minimum of 20 feet clear width for two-way traffic and 14 feet clear width for one-way traffic. The paved width of access roadway shall be measured from edge of parking spaces, or face of curb for vertical curb and back of curb for mountable curb, or edge of pavement if there is no curbing.
5.3 The design professional of record shall certify that the access roadway was built to the minimum requirements as listed in 5.1.
5.4 Access roadways not utilized as fire lanes shall not require marking.
6.1 The following criteria shall be utilized to effect a design submittal for review and approval.

6.2 Fire lanes shall be a minimum 24 feet in clear width.
6.3 Fire lanes shall be required to run along the front of the building as determined by the primary entrance(s). In cases where there is more than one primary entrance(s), each shall be served by a fire lane even if this exceeds the percentage as required by Section 4.0, Table 5-2.
6.3.1 Parking shall be prohibited between the building and the fire lane where 4.2.1 applies.
6.3.2 Parking shall be prohibited in front of the primary entrance for a width of not less than 1.5 times the width of the door(s) or for 10 feet, whichever is greater.
6.3.2.1 Parking shall be prohibited in front of any secondary entrance(s) located within the required perimeter and fire lane access, for a width of not less than the width of the entrance door(s).
6.3.2.2 Where multiple primary entrances are provided, 15 foot wide unobstructed emergency services access shall be provided in parking rows at intervals not to exceed 90 feet.
6.3.2.3 Containers placed within parking spaces between the fire lane and the building shall be limited to one container no greater than 12 feet in height.
6.3.3 Where parking is provided between the building and the fire lane, unobstructed emergency services access shall be provided in parking rows at intervals not to exceed 90 feet.
6.3.4 Parking and/or obstructions shall be prohibited in front of fire department connections for a distance measuring from the center line and extending four feet on both sides.
6.3.5 Parking shall be prohibited for 15 feet, in any direction, from an intersection at the corner of a building.
6.3.6 Handicap access shall be permitted to be used as the unobstructed access referred to in 6.3.2.2.
6.4 The closest edge of fire lanes shall not be located closer than ten (10) feet to the exterior wall.
6.4.1 Where parking is located between the building and the fire lane, parking shall not be located closer than 15 feet to the exterior wall.
6.5 The closest edge of fire lanes shall not be located further than 50 feet from the exterior wall if one or two stories in height; 40 feet if three or four stories in height, or 30 feet if over four stories in height.
6.6 Fire lanes shall be constructed to meet the minimum engineering specifications of the Delaware Department of Transportation requirements for paved roadways.
6.7 "Speed Bumps" or any other like device used to reduce vehicle speed shall be limited. They shall be installed pursuant to the State of Delaware Department of Transportation specifications.
6.8 Where overhangs, canopies, balconies, or any other building or site features must project over any fire lane, an unobstructed vertical clearance of not less than 13’-6” above the fire lane shall be provided.
6.8.1 Overhangs, canopies, balconies, or any other building or site features shall not impair access by emergency apparatus.
6.8.2 Overhangs, canopies, balconies, or any other building or site features shall not reduce the width of any fire lane.
6.8.3 Overhangs, canopies, balconies, or any other building or site features shall not interfere with the effective utilization of fire department aerial devices.
6.8.4 The portion of the building perimeter which contains overhangs, canopies, balconies, or any other building features shall not apply towards the fire lane accessibility requirements of Section 4.0, Table 5-1 in this chapter.
7.1 All fire lanes shall be marked as prescribed within the appropriate section of this regulation and as illustrated by the appropriate figures of this regulation.
7.2 Fire lanes shall be marked as follows:
7.2.1 Both the inner and outer edges of the fire lane shall be marked.
7.2.2 Where curbs are present, the top and face of the curb shall be painted yellow.
7.2.3 Where no curbs are present, a four inch (4”) solid yellow demarcation line shall mark the edge(s) of the fire lane.
Note: See Figure 5-10 – Marking and Identification of Fire Lane
7.2.4 Where the four inch (4”) solid yellow demarcation line of a fire lane intersects an access roadway or parking lot aisle, it may be marked as follows:
7.2.4.1 A four inch (4”) solid yellow demarcation line may continue to run across the intersection of the access roadway or parking lot aisle, or
7.2.4.2 A broken (intermittent) four inch (4”) yellow demarcation line may continue to run across the intersection of the access roadway or parking lot aisle, or
7.2.4.3 The four inch (4”) solid yellow demarcation line may be omitted at the intersection of the access roadway or parking lot aisle, but shall continue for the remainder of the fire lane where it does not intersect an access roadway or parking lot aisle.
Note: See Figure 5-11 – Marking and Identification of Fire Lane – Intersecting an Access Roadway or Aisle
7.3 Fire lane signs shall be located as follows:
Note: See Figure 5-16 – Approved Sign For Marking Fire Lanes
7.3.1 Fire lane signs shall be spaced at 150 foot intervals maximum.
7.3.2 All fire lane signs shall be located no less than six feet (6’) and no higher than eight feet (8’) above the pavement.
7.3.3 Signs shall be placed at each end of the fire lane.
7.3.4 Signs shall face all oncoming traffic.
7.3.5 Where no parking is provided between the building and the fire lane, signs shall be posted along the inner curb, building line, or edge of the roadway immediately adjacent to the fire lane.
Note: See Figure 5-12 – Marking and Identification of Fire Lane – No Parking Between Building & Fire Lane
7.4 When a method of parking restriction utilizes a curb island extension to meet the requirements of 6.3.2.2, markings shall be as follows:
7.4.1 Fire lane signs shall be installed in accordance with 7.3.
7.4.2 Four inch (4”) solid yellow demarcation lines shall be provided in accordance with 7.2.
7.4.3 The curb of the extension shall be marked parallel to the traffic lane around to the curb tangent.
Note: See Figure 5-13 – Access Requirements – Parking Between Building & Fire Lane with Curb and Sidewalk with Multiple Primary Entrances
7.5 When a method of parking restriction uses demarcation lines to meet the requirements of 6.3.2.2, it shall be as follows:
7.5.1 The space shall be marked with diagonal four inch (4”) solid yellow lines and the words “NO PARKING”.
7.5.1.1 The words “NO PARKING” shall be no less than six feet (6’) in height and 12 feet in length.
Note: See Figure 5-14 – Access Requirements – Parking Between Building & Fire Lane with Sidewalk But without Curb with Multiple Primary Entrances
7.6 Where parking is not restricted roadway markings shall utilize the words "FIRE" and "LANE" in lieu of fire lane signs, and shall conform to the following specifications:
7.6.1 The first word "FIRE" shall be closest to a driver approaching such marking,
7.6.2 Each word shall be at least ten feet (10’) in height and 20 feet,
7.6.3 The distance between the word "FIRE" and the word "LANE" shall be no greater than 30 feet, and
7.6.4 The distance from the word "LANE" to the beginning of the second set of roadway markings where the word "FIRE" begins shall be no greater than 100 feet.
Note: See Figure 5-15 – Marking and Identification of Fire Lane – Parking Between Building and Fire Lane
7.7 Where permitted by the State Fire Marshal, a combination of fire lane signs and roadway markings shall be acceptable.
8.1 All building exits leading to fire lanes shall be marked as prescribed within the appropriate section of this regulation and as illustrated by the appropriate figures of this regulation.
8.2 All exits shall have minimum four inch (4”) solid yellow demarcation lines define specific areas.
8.2.1 ADA blue markings shall be acceptable to meet 8.2 provided they are adjacent to the ADA parking space and used as part of the ADA access.
8.3 Demarcation lines on primary exits shall extend no less than 1.5 times the width of the door to the fire lane.
8.4 Demarcation lines on secondary exits shall extend no less than the width of the door to the fire lane.
8.5 Demarcation lines need not be located on sidewalk surfaces or other surfaces not subject to vehicular traffic, but shall extend from the end of the sidewalk surface or curb line to the fire lane.
8.5.1 Where necessary to extend from the sidewalk to the fire lane the area shall be hatched using four inch solid yellow lines.
8.6 No objects, stands, displays, or other impediments shall be located within the demarcation area.
8.7 When required by the State Fire Marshal, minimum four inch (4”) diameter steel bollards filled with concrete and marked yellow shall be installed at the outermost corners of the exit’s demarcation area. The minimum height of the bollard shall be 36 inches above the finished grade of the adjacent surface.
9.1 Existing Buildings
9.1.1 In the case of a building constructed prior to the adoption of this Regulation, this Regulation is not intended to require the degree of access as required for new buildings, but this Regulation does require that access be provided and marked for existing buildings, ON A CASE BY CASE BASIS, as determined by the State Fire Marshal with due consideration to the existing conditions
9.1.2 “Existing” in the context of this section means that the building was already constructed prior to a fire lane regulation being promulgated, prior to the date of these Regulations. The State Fire Marshal shall determine the minimum access and marking required based on the building occupancy, size, and height with due consideration to the existing conditions.
9.2 Existing Fire Lane Markings
9.2.1 Requested changes to the existing fire lane markings shall meet all the provisions of this chapter.
10.1 It shall be unlawful for any person to park motor vehicles in, or otherwise obstruct any fire lane.
10.2 Enforcement action to require the appropriate design and marking of fire lanes, etc. as required in this Regulation shall be as prescribed in 16 Del.C. §6614.
10.3 Enforcement action regarding stopping, standing or parking a vehicle in a fire lane shall be as prescribed in 21 Del.C. §4179 and/or 21 Del.C. §7001.
10.4 Enforcement action regarding stopping, standing or parking a vehicle within 15 feet of a fire hydrant shall be as prescribed in this regulation and 21 Del.C. §7001 and/or 21 Del.C. §4179.
10.5 It shall be unlawful for any person to park motor vehicles in or otherwise obstruct a turn-around or a cul-de-sac.
Number of Stories | 1-2 (Up to 25’) | 3-4 (26’-50’) | Over 4 (Over 50’) |
Type of Occupancy | |||
Place of Assembly | |||
Class A | 100% | 100% | 100% |
Class B | 75% | 100% | 100% |
Class C | 50% | 100% | 100% |
Educational | |||
All Schools | 100% | 100% | 100% |
Day Care Facilities | 75% | 100% | 100% |
Health Care and Penal | 100% | 100% | 100% |
Business | 50% | 100% | 100% |
Mercantile | |||
Class A | 100% | 100% | 100% |
Class B | 75% | 100% | 100% |
Class C | 50% | 100% | 100% |
Residential | 50% | 70% | 100% |
Note 1: Industrial, Storage, special hazards, and any occupancy not listed in Table 1 will be reviewed on an individual basis with the nature and degree of the hazard to be considered.
Note 2: See Chapter 5, §1.3.3 of this Regulation for buildings that are not required to comply with this Table.
Note 3: Perimeter accessibility may be reduced by up to 50 percent when the building is completely protected by an automatic sprinkler system installed pursuant to the specifications and standards of the Standard for the Installation of Sprinkler Systems, NFPA 13, as adopted and/or modified by these regulations
Note 4: Where, in the opinion of the State Fire Marshal, an occupancy’s fire protection features are such that fire lanes do not contribute to the overall level of life safety and/or property conservation, the State Fire Marshal may modify the requirements of this Chapter. Such occupancies shall be identified on a case by case basis and listed by the State Fire Marshal










Figure 6.1
Access Requirements - Parking Between Building & Fire Lane - With Curb and Sidewalk
With Multiple Primary Entrances

Figure 6.2
Access Requirements - Parking Between Building, Fire Lane Sidewalk & Multiple Primary Entrances
Without Curb

Figure 7.1
Marking and Identification of Fire Lane

Figure 7.2
Marking and Identification of Fire Lane -
Intersecting An Access Roadway or Aisle

Figure 7.3
Marking and Identification of Fire Lane -
No Parking Between Building & Fire Lane

Figure 7.4
Marking and Identification of Fire Lane -
Parking Between Building and Fire Lane

Chapter 6.1
Marking and Identification of Exits Without Fire Lanes

Chapter 6.2
Marking of Fire Hydrant in Parking Lot

Chapter 6.3
Marking of Fire Hydrants Along Curb

1.1 All exits shall be marked as prescribed within the appropriate section of this regulation and as illustrated by the appropriate figures of this regulation.
1.2 All exits shall have minimum of four inch (4") solid yellow demarcation lines to define specific areas.
1.2.1 ADA blue markings shall be acceptable to meet 1.2.
1.3 Demarcation lines shall extend no less than the width of the door to the edge of street or traffic lane.
1.4 Demarcation lines need not be located on sidewalk surfaces or other pedestrian surfaces not subject to vehicular traffic, but shall extend from the end of the sidewalk surface to the edge of street or traffic lane.
1.4.1 Where necessary to extend from the sidewalk to the edge of street or traffic lane the area shall be marked using diagonal four inch solid yellow lines.
1.5 No objects, stands, displays, or other impediments shall be located within the demarcation area.
1.6 When required by the State Fire Marshal, minimum four inch (4") diameter steel bollards filled with concrete and marked yellow shall be installed at the outermost corners of the exit's demarcation area. The minimum height of the bollard shall be 36 inches above the finished grade of the adjacent surface.
Note: See Figure 6-1 - Marking and Identification of Exits without Fire Lanes
2.1 All fire hydrants shall be marked as prescribed within the appropriate section of this regulation and as illustrated by the appropriate figures of this regulation.
2.2 All fire hydrants shall have minimum of four inch (4") solid yellow demarcation lines to define specific areas.
2.3 Where fire hydrants are located along a curb line with permitted parking, the area between the fire hydrant and the street or fire lane shall be stenciled with four inch (4") demarcation lines and the words "NO PARKING".
2.3.1 The words "NO PARKING" shall be no less than six feet (6') in height and 20 feet in length.
2.3.2 Diagonal demarcation lines on the street shall extend from edge of street to the edge of the traffic lane.
2.3.3 Where a curb is used, the top and face of the curb shall be painted yellow.
2.3.4 Demarcation lines shall be measured from the center line of the fire hydrant and extend for a distance 15 feet on both sides.
Note: See Figure 6-2 - Marking of Fire Hydrants Along Curb
2.4 Where fire hydrants are located on a curb island extension in such a manner that the hydrant is directly accessible to the street or fire lane, the top and face of curb shall be painted yellow.
2.4.1 The curb shall be marked parallel to the traffic lane around to the curb tangent.
2.5 Where fire hydrants are located in parking lots or other areas susceptible to blockage by parked vehicles they shall be treated as follows:
2.5.1 Fire hydrants shall be protected in all directions for a distance of seven feet (7') with barriers or curbing.
2.5.2 An access roadway shall run through the parking area and adjacent to the demarcation area of the fire hydrant.
2.5.3 The access roadway shall extend "from" and "to" a traffic lane.
2.5.5 Minimum four inch (4") diameter steel bollards filled with concrete and marked yellow shall be installed at the outermost corners of the fire hydrant demarcation area. The minimum height of the bollard shall be 36 inches above the finished grade of the adjacent surface.
Note: See Figure 6-3 - Marking of Fire Hydrant in Parking Lot
2.6 The distance between a fire hydrant and the nearest edge of the street shall not be greater than ten feet (10') unless an alternate distance is approved by the State Fire Marshal.
2.7 The steamer connection of all fire hydrants shall be positioned so as to be facing the edge of the street, or traffic lane.
3.1 All standpipe and sprinkler connections shall be marked as prescribed within the appropriate section of this regulation and as illustrated by the appropriate figures of this regulation.
3.2 All standpipe and sprinkler connections shall have minimum of four inch (4") solid yellow demarcation lines to define specific areas.
3.3 Solid yellow demarcation lines shall be measured from the center line of the connection and extend for a distance of four feet (4') on both sides.
3.4 Where parking is allow between the building and the street or fire lane the solid yellow demarcation lines shall extend from the end of the sidewalk surface to the street or fire lane.
3.4.1 Markings shall not be required on the sidewalk surface.
3.4.2 Where necessary, diagonal four inch (4") solid yellow demarcation lines including the words "NO PARKING" shall be painted to define the specific area.
3.5 No objects, stands, displays, or other impediments shall be located within the demarcation area.
3.6 When required by the State Fire Marshal, minimum four inch (4") diameter steel bollards filled with concrete and marked yellow shall be installed at the outermost corners of the demarcation area for the fire department connections. The minimum height of the bollard shall be 36 inches above the finished grade of the adjacent surface.
3.7 All fire department connections (standpipe and sprinkler) shall have a minimum 12" x 18" sign that reads:
FIRE DEPT. CONNECTION
Sign lettering shall be a minimum of 3 inches (3") in height with red scotchlite letters on white scotchlite background. The sign shall be clearly visible from the fire lane or roadway.
3.7.1 Signs using NFPA international symbols shall be an acceptable alternative.




