DEPARTMENT OF TRANSPORTATION
Division of Transportation Solutions
FINAL
ORDER
2405 Oversize/Overweight Hauling Permit Policy and Procedures Manual
Pursuant to the authority provided by 21 Del.C. §4504, the Delaware Department of Transportation proposed to adopt changes to its regulation entitled the Oversize/Overweight Hauling Permit Policy and Procedures Manual.
The Department, through its Division of Transportation Solutions, published proposed revisions to the existing regulation, the Oversize/Overweight Hauling Permit Policy and Procedures Manual, seeking public comment through the public notice appearing in 21 DE Reg. 418 (11/01/17).
The Department indicated in its November 1, 2017 notice that it would accept written public comments on the proposed changes to the Oversize/Overweight Hauling Permit Policy and Procedures Manual from November 1, 2017 through December 1, 2017.
No comments were received.
Summary of the Evidence and Information Submitted.
The proposed changes to the Oversize/Overweight Hauling Permit Policy and Procedures Manual are procedural changes, administrative in nature and serve to clarify the intent of the Department.
Findings of Fact
Based on the record in this docket, I make the following findings of fact:
1. The proposed amendments to the Oversize/Overweight Hauling Permit Policy and Procedures Manual are useful and proper. The public comment period was appropriately held open for thirty days and no public comment was received.
2. The adoption of these proposed changes to the Oversize/Overweight Hauling Permit Policy and Procedures Manual is in the best interests of the State of Delaware. Having received no public comment, there is no basis upon which to further amend the regulation and it is adopted as amended.
Decision and Effective Date
Based on the provisions of Delaware law and the record in this docket, I hereby adopt the amended Oversize/Overweight Hauling Permit Policy and Procedures Manual, as set forth in the version attached hereto, to be effective on January 11, 2018.
IT IS SO ORDERED this 20th day of December, 2017.
Jennifer Cohan, Secretary
Delaware Department of Transportation
2405 Oversize/Overweight Hauling Permit Policy and Procedures Manual
1.1 Purpose
The intent of the Oversize/Overweight Hauling Permit Program is to promote public safety, minimize impacts to the traveling public, minimize impacts/damage to public facilities, and to assign equitable fees to the movement of oversize/overweight goods. The purpose of this manual is to state the policy and procedures of the Department of Transportation, Division of Motor Vehicles, regarding the issuance of Hauling Permits, hereinafter called "permit", for oversize and/or overweight vehicles. The guidelines contained in this Manual should provide guidance for the majority of all oversized and overweight vehicle moves. However, the Department reserves the right to modify the requirements on a case-by-case basis based on engineering judgment and public safety requirements.
1.2 Legal Authorization
1.2.1 Chapter 45, Section 4504 of Title 21 of the Delaware Code delegate's authority to the Delaware Department of Transportation to establish such rules and regulations including the setting of fees as may be needed to comply with the laws of the State of Delaware and the laws of the Federal Government.
1.2.2 As authorized in Chapter 45, Section 4504 of Title 21 of the Delaware Code, local authorities may issue a special permit that may have different requirements from those set forth herein. Every such permit shall be laid only upon highways under the jurisdiction of and for which the maintenance thereof is the sole responsibility of the governing body issuing the permit.
1.2.3 In the establishment of this policy, it is not intended, and no section of this policy shall be so interpreted, as to require the violation of any legal statute, State or Federal.
1.2.4 A permit shall be required for movement on the highways of the State of Delaware when any vehicle, vehicle combination, vehicle and load combination, and/or equipment or machinery being moved under its own power exceeds the dimensional and/or weight limits set forth in Chapter 45, Title 21 of the Delaware Code. The limitations are described in Part 2 of this Manual.
1.3 Definitions
The following words and terms, when used in this manual, have the following meanings unless the context clearly indicates otherwise:
“Axle” means load-bearing wheels in a transverse line across the full width of a vehicle.
“Axle Group” means a group of axles in which every axle is located within 8 feet of another axle.
“Combination” means two or more vehicles physically interconnected in tandem.
“Commercial Vehicle” means a vehicle of a type designed, used, or maintained for the transportation of persons or property for hire, compensation, or profit, except taxicabs.
“Crane” means any self-propelled vehicle to which has been permanently mounted or attached any crane, whether or not such vehicle was originally a truck, tractor, or other type of motor vehicle or was designed and built as a complete crane unit. However, the word "crane," as herein defined, shall not be construed to mean any truck or other vehicle equipped with or to which has been affixed any device used for the purpose of providing a means for towing other vehicles.
“Department” means the Department of Transportation of this State (DelDOT) acting directly or through its duly authorized officers and agents.
“Escort” means a single unit non-permitted vehicle, no smaller than a compact car that is used to accompany a permitted vehicle. An escort vehicle can be a vehicle provided by the permittee, the Delaware State Police, or any other entity defined by the Department.
“Farm Tractor” means every motor vehicle designed and used primarily as a farm implement for drawing plows, mowing machines and other implements of husbandry.
“Gross Weight” means the combined weight of a vehicle or combination of vehicles and its load and driver.
“Highway” means the entire width between boundary lines of every way or place of whatever nature open to the use of public as a matter of right for purposes of vehicular travel, but does not include a road or driveway upon grounds owned by private persons, colleges, universities or other institutions.
“Implement of Husbandry” means a vehicle designed or adapted and determined by the Department to be used exclusively for agricultural, horticultural or livestock operations and only incidentally operated or moved upon highways.
“Local Authorities” means every county, municipal, and other local board or body having authority to adopt local police regulations under the Constitution and laws of this State.
“Mobile Home” means a trailer designed and used exclusively for living quarters or commercial purposes that exceeds the maximum size limitations prescribed by the act for operation on a highway and is only incidentally operated on a highway.
“Nondivisible Load” means a load that is incapable of being divided into parts or dismembered without substantially damaging its usefulness or value.
“Oversize” means the length, width, or height of a vehicle or combination of vehicles, including the load or loads carried thereon, excluding mirrors or sunshades, which exceed the applicable maximum length, width, or height specified in Section 2 of this Manual.
“Overweight Vehicle” means any vehicle having a gross weight, including load thereon, in excess of that permitted by law; including, but not limited to, a gross weight in excess of the weight for which a valid registration has been issued.
“Semitrailer” means every vehicle of the trailer type so designed and used in conjunction with a motor vehicle, such that some part of its own weight and that of its own load rests upon or is carried by another vehicle. Piling and pole trailers are to be considered to fall within the meaning of this definition.
“Ship Permit” means a permit that is issued for oversize and/or overweight vehicles engaged in ship offloading operations conducted at the Port of Wilmington to designated locations on designated state-maintained routes exclusive of Interstate routes within two (2) miles from the property limits of the Port of Wilmington.
“Shoulder” means the portion of the highway, contiguous to the roadway, for accommodation of stopped vehicles, for emergency use and for lateral support of the roadway.
“Single Axle” means an axle located over eight (8) feet from another axle.
“Special Construction Equipment” means every vehicle not designed or used primarily for the transportation of persons or property and only incidentally operated or moved over a highway, including but not limited to: Ditch-digging apparatus, well-boring apparatus, road construction or maintenance machinery such as asphalt spreaders, air compressors and drills, bituminous mixers, bucket loaders, tractors other than truck tractors, leveling graders, finishing machines, road rollers, scarifiers, earth-moving scrapers and carryalls, welders, power shovels and drag lines, self-propelled cranes, earth-moving equipment and construction box storage trailers (except when such trailers are used for transporting merchandise). The term does not apply to dump trucks, truck mounted transit mixers, tow trucks, or shovels or other vehicles designed for the transportation of persons or property to which machinery has been attached.
“STAA” means the Surface Transportation Assistance Act.
“Structure” means a bridge or culvert including supports, which spans or provides passage over or under a waterway, a railroad or other obstruction, or any other physical device designed to carry traffic control devices, including, but not limited to, overhead signs, light fixtures and traffic signals.
“Sunrise” means the time designated by the National Weather Service at which the sun can first be seen on the horizon.
“Sunset” means the time designated by the National Weather Service at which the sun can last be seen on the horizon.
“Superload” means any vehicle and/or load is considered a SUPERLOAD when any one of the following conditions exist: fifteen (15) feet or more in width; fifteen (15) feet or more in height; one hundred twenty (120) feet or more in length; has a gross weight in excess of 120,000 pounds.
“Supporting Documentation” means documents that are required to be submitted as part of the permit application process.
“Trailer” means a mobile home, park trailer, travel trailer, house trailer, office trailer, camping trailer or any vehicle without motive power designed to carry property or passengers wholly on its own structure and to be drawn by a motor vehicle.
“Truck Tractor” means every motor vehicle designed and used primarily for drawing other vehicles and not so constructed as to carry a load other than a part of the weight of the vehicle and load so drawn.
“Vehicle” means every device in, upon or by which any person or property is or may be transported or drawn upon a public highway, excepting devices moved by human power or used exclusively upon stationary rails or tracks except electric trackless trolley coaches, electric personal assistive mobility devices and excepting Off-Highway Vehicles (OHVs).
2.1 Length. If the overall length of any vehicle or combination of vehicles exceeds the legal length limits contained herein, a permit shall be required.
2.1.1 Single motor vehicles, including any load thereon, shall not exceed 40 feet in length, except as otherwise provided in this section.
2.1.2 On Interstate and U. S. Routes not otherwise posted:
2.1.2.1 The maximum length of a semitrailer, including any load thereon, exclusive of truck tractor size shall be 53 feet.
2.1.2.2 Buses shall not exceed 45 feet in length.
2.1.2.3 The maximum length of a trailer or semi-trailer in a truck tractor-semitrailer-trailer combination, including any load thereon, exclusive of tractor size shall be 29 feet.
2.1.3 On all other highways:
2.1.3.1 Single motor vehicles, including any load thereon, shall not exceed 40 feet in length, and no combination of vehicle, including the load thereon, shall exceed 60 feet in length, except as otherwise provided in this section
2.1.3.1.1 A truck and semitrailer combination engaged in the transportation of motor vehicles shall not exceed a length of 65 feet exclusive of the overhang of the transported vehicle.
2.1.3.1.2 Buses shall not exceed 45 feet in length.
2.1.3.1.3 Piling and pole trailers and vehicles or combinations of vehicles engaged in the transportation of steel beams, pipes, angles, channels and other lengths of steel, or other metals, or other articles impossible of dismemberment, shall not exceed 70 feet. When carrying long logs, poles, piling, and etc. a pole trailer shall be required.
2.1.3.2 The limitations as to the length of load shall not apply in the case of a vehicle or combination of vehicles transporting boats commonly known as crew or rowing shells for use in interscholastic or intercollegiate rowing contests provided that such boats shall not exceed 70 feet in length.
2.1.4 The maximum overhang shall not exceed 6 feet beyond the rear of the vehicle and no load shall be permitted to touch or drag upon the roadway regardless of permissible overhang. No vehicle or combination of vehicles shall carry any load extending more than 3 feet beyond the front thereof.
2.1.5 Pilings and/or poles or mill logs, or nursery stock, or rowing shells, or steel beams, pipes, angles, channels and other length or steel, or other metal, or other articles impossible of dismemberment shall not extend more than 10 feet beyond the rear of the bed or body of such vehicle.
2.2 Width
2.2.1 If the overall width of any vehicle or combination of vehicles exceeds 8 feet - 6 inches measured as defined below, a permit shall be required.
2.2.2 On Interstate and U.S. Routes the outside width of 8 feet - 6 inches is exclusive of safety equipment, which may extend not more than 3 inches more on each side of the vehicle.
2.2.3 On all other highways, no vehicle including any load thereon shall exceed a total outside width of 8 feet - 6 inches inclusive of safety devices.
2.3 Height. On any Interstate, U.S. Route, or highway if the maximum height of any vehicle or combination of vehicles, including load thereon, exceeds 13 feet - 6 inches a permit shall be required.
2.4 Weight. A permit is required if the Gross Vehicle Weight (GVW) exceeds the limits imposed by statute as shown in Table 2.1. Vehicles that do not exceed GVW but do exceed individual axle weight(s) show in Table 2.1 will require a permit. DelDOT Bridge Management Section and Materials and Research Section will automatically review permits with an individual axle weight at or greater than 25,000 pounds. Analysis may occur at a lower weight on a case-by-case basis. The permittee is responsible to effectively distribute a load or reduce the overall weight below this axle limit, as necessary, to lessen the higher live load forces overstressing state structures.
|
Table 2.1
Table of Maximum Gross Weights
|
|
|
ALL ROADS EXCEPT THE INTERSTATE
|
THE INTERSTATE SYSTEM
|
|
22,400 lbs. per single axle
|
20,000 lbs. per single axle
|
|
40,000 lbs. per tandem axle
|
34,000 lbs. per tandem axle
|
|
2 axle vehicle: 40,000 lbs. maximum
|
2 axle vehicle: 40,000 lbs. maximum
|
|
3 axle vehicle: 65,000 lbs. maximum(1)
|
3 axle vehicle: 54,000 lbs. maximum(2)
|
|
4 axle vehicle: 73,280 lbs. maximum
|
4 axle vehicle: 74,000 lbs. maximum(2)
|
|
5 axle vehicle: 80,000 lbs. maximum
|
5 axle vehicle: 80,000 lbs. maximum
|
|
|
Bridge Formula applies to all axle configurations
|
|
Notes:
1) A vehicle equipped with 3 axles, having each of the 3 axles equipped with 2 hubs, with a power brake on each hub, shall not exceed a total gross weight of 65,000 lbs.; provided, however, that it shall also be lawful to operate such a vehicle to and from any construction site in this State when the total gross weight does not exceed 70,000 lbs.; and it shall also be lawful to operate such a vehicle containing agricultural products when the gross weight, including vehicle and load does not exceed 70,000 lbs.; provided further that an annual fee of $100 per vehicle be levied for the use of this extra weight capacity.
|
2) Refer to Part 3. PERMIT DESCRIPTION & PROCEDURES, 3.2 Types of Permits 3.2.1.9 and 3.2.1.10 for overweight hauling permit details.
|


2.5 Penalties
2.5.1 Based on the Authority provided under Delaware State Code Chapter 45, Section 4508, of Title 21, relating to Penalties, any person who violates any requirements of this section relating to the size or weight of a vehicle or a combination of vehicles or restrictions regarding parking in residence districts shall be punished as follows:
2.5.2 A first offense shall be punishable by a fine of not less than $28.75 nor more than $230.00 or by a term of imprisonment of not more than 30 days or both.
2.5.3 A subsequent like offense shall be punishable by a fine of not less than $115.00 nor more than $575.00 or by a term of imprisonment of not more than 60 days or both.
2.5.4 Any person who violates any requirement of this section, specifically relating to the weight of a vehicle or a combination of vehicles, such that said vehicle shall be classified as an "overweight vehicle," shall in addition to whatever other penalties may be allowed by law be punished as follows:
2.5.4.1 A first offense shall be punishable by a fine for all excess weight exceeding the vehicles registered weight or Federal Bridge Formula, if operating on the interstate, for the first 5,000 pounds in the amount of 2.3 cents per pound and a fine for all excess weight over the first 5,000 pounds in the amount of 5.75 cents per pound or by a term of imprisonment not to exceed 30 days or both.
2.5.4.2 Each subsequent offense shall be punishable by a fine for all excess weight exceeding the vehicles registered weight or Federal Bridge Formula, if operating on the interstate, for the first 5,000 pounds in the amount of 5.75 cents per pound and a fine for all excess weight over the first 5,000 pounds in the amount of 11.5 cents per pound or by a term of imprisonment not to exceed 60 days or both.
2.5.5 For purposes of this section a first offense shall be defined as one not previously committed by the person charged within the previous 24 months prior to the date of the offense. A subsequent like offense shall be deemed to have occurred if the person charged has previously been convicted or charged and subsequently convicted of the same offense within the previous 24 months prior to the date of this offense.
3.1 Who Must Apply for Permits
3.1.1 A permit is required for movement on the highways of the State of Delaware when any vehicle and/or nondivisible load exceed the limits described in Part 2.
3.1.2 All motor vehicles, combination of vehicles, self propelled equipment, and machinery shall be licensed prior to an application being made for a permit.
3.1.3 Farm tractors and other implements of husbandry, which are being temporarily operated, moved or transported upon State maintained highways except Interstate and U.S. Routes are not required to obtain a hauling permit. A permit is not required on the Interstate and U.S. Routes when the equipment is being used by farmers engaged in their agricultural related practices. Farm tractors and other implements of husbandry being moved or transported by a manufacturer, dealer, business or commercial transport company would not be considered transported by a farmer engaged in their agricultural related practices, therefore, a hauling permit is required.
3.1.4 A permit is not required for any vehicle, including special construction equipment, crossing or entering upon State maintained highways while engaged in construction or maintenance operations, provided such moves are made within the limits of a Federal, State, County, or Municipal Contract.
3.1.5 A permit is not required for federally defined Surface Transportation Assistance Act (STAA) vehicles on the defined STAA routes. The Federal Register, Volume 55, Number 83, dated Monday, April 30, 1990, page 17952, lists the following roads, as well as the Interstates 95, 495 and 295, as the designated STAA routes in Delaware:
U.S. Route 13, from the Maryland State Line, to the I-495 South Interchange in Wilmington.
U.S. Route 40, from the Maryland State Line, to I-295, U.S. Route 13, in Wilmington.
U.S. Route 113, from the Maryland State Line, to U.S. Route 13, in Dover.
U.S. Route 301, from the Maryland State Line, to U.S. Route 40, in Glasgow.
Separately, Delaware has designated U.S. Route 202, from U.S. Route 13, to the Pennsylvania State Line; and State Route 1, from I-95, to U.S. 113, in Dover as routes open to STAA vehicles.
3.1.6 A permit is not required for any government (Federal, state or local) owned vehicles, including the load thereon, that are loaded with salt, sand, chemicals or a combination thereof, with or without a plow or blade attached in front and/or sides and being used for the purpose of spreading the material on highways that are or may become snow covered, slick or icy. This exemption also applies to any private entity under contract with a Delaware governmental body performing snow and ice removal operations.
3.2 Types of Permits
3.2.1 Permits by Load Codes & Associated Fees
3.2.1.1 Load Code 1 Oversize
3.2.1.1.1 A load that is Oversize but less than SUPERLOAD criteria. Exception - Certain types of vehicles may have over legal limit individual axle weight(s) but meet GVW. These vehicles will be Oversize with overweight axle data noted on the hauling permit.
3.2.1.1.2 Type - Single Trip
3.2.1.1.3 Fee - $30.00
3.2.1.1.4 Duration - Five (5) days. See 4.2.1 for details.
3.2.1.1.5 Time of Travel - Monday through Sunday sunrise to sunset during the permit Effective and Expiration Dates.
3.2.1.2 Load Code 2 Overweight
3.2.1.2.1 A load that is over legal weight: (Legal GVW for 2 axles = 40K lbs.; 3 axles = 65K lbs.; 4 axles = 73280 lbs.; 5 or more axles = 80K lbs) but less than SUPERLOAD criteria. Load may be oversize but under limits of SUPERLOAD
3.2.1.2.2 Type - Single Trip
3.2.1.2.3 Fee - $30.00 plus weight fee of $10.00 for each 8,000 pounds or portion thereof over legal weight
3.2.1.2.4 Duration - Five (5) days. See 4.2.1 for details.
3.2.1.2.5 Time of Travel - Monday through Sunday sunrise to sunset during the permit Effective and Expiration Dates.
3.2.1.3 Load Code 3 SUPERLOAD
3.2.1.3.1 A SUPERLOAD is defined as any vehicle and/or load that has any one of the following conditions: fifteen (15) feet or more in width; fifteen (15) feet or more in height; one hundred twenty (120) feet or more in length; has a gross weight in excess of 120,000 pounds. Part 5 of this Manual provides detailed processing requirements for Superload permits.
3.2.1.3.2 Type - Single Trip
3.2.1.3.3 Fee - $60.00 plus weight fee of $10.00 for each 8,000 pounds or portion thereof over legal weight. Additional fees may apply as described in Part 5.
3.2.1.3.4 Duration - One (1) to Five (5) business days Monday - Saturday, Duration may be limited to actual move time frame based on route conditions as determined by DelDOT Traffic and Safety Engineers and noted in Special Provisions portion of permit.
3.2.1.3.5 Time of Travel - Refer to Part 5 under specific Types of Superload.
3.2.1.4 Load Code 4 Manufactured Housing
3.2.1.4.1 A load that is Oversize and normally legal weight but less than SUPERLOAD criteria. Permit used for movement of Manufactured Housing (Mobile Home, Modular Housing, or Office Trailer).
3.2.1.4.2 Type - Single Trip
3.2.1.4.3 Fee - $30.00
3.2.1.4.4 Duration - Five (5) days. See 4.2.1 for details.
3.2.1.4.5 Time of Travel - Monday through Sunday sunrise to sunset during the permit Effective and Expiration Dates.
3.2.1.5 Load Code 5 Sealed Container
3.2.1.5.1 All ocean going ship containers packed with product which carry a federal inspectors seal as to purity or customs requirements, and which results in a GVW of 100,000 pounds or less, shall be considered non-divisible loads when moving between a port and the facility where the seal is placed, or where the contents of the container are released from the seal.
3.2.1.5.2 Type - Single Trip
3.2.1.5.3 Fee - $30.00 plus weight fee of $10.00 for each 8,000 pounds or portion thereof over legal weight
3.2.1.5.4 Duration - Five (5) days
3.2.1.5.5 Time of Travel - Monday through Sunday sunrise to sunset during the permit Effective and Expiration Dates.
3.2.1.6 Load Code 6 Ship
3.2.1.6.1 This permit allows for vehicle w/load less than 85 ft overall length w/rear overhang not to exceed 1/3 length of load, 12 ft in width and gross weight up to 120000 lb. on 5 or more axles irrespective of number of pieces being hauled. Moves are restricted to state maintained roads within 2 miles of the Port of Wilmington (excluding I495). Permit is not truck/trailer specific.
3.2.1.6.2 Type - Multi Trip
3.2.1.6.3 Fee - $900.00
3.2.1.6.4 Duration - Five (5) days
3.2.1.6.5 Time of Travel - Monday through Sunday sunrise to sunset during the permit Effective and Expiration Dates.
3.2.1.7 Load Code 7 Pole & Piling
3.2.1.7.1 Permit allows for movement of Pole, Piling, and Mill Stock. Permit shall be valid for an individual tractor only.
3.2.1.7.2 Type - Multi Trip
3.2.1.7.3 Fee - $30.00
3.2.1.7.4 Duration - Thirty (30) days
3.2.1.7.5 Time of Travel - Monday through Sunday sunrise to sunset during the permit Effective and Expiration Dates.
3.2.1.8 Load Code 8 Annual Weight Registration
3.2.1.8.1 Permit allows a 3 axle single vehicle w/GVW of 65K lbs to move with 70K GWV when hauling construction or agricultural loads.
3.2.1.8.2 Type - Multi Trip
3.2.1.8.3 Fee - $100.00
3.2.1.8.4 Duration - One (1) Year
3.2.1.8.5 Time of Travel - Monday through Sunday sunrise to sunset during the permit Effective and Expiration Dates.
3.2.1.9 Load Code 9 Single-trip Interstate
3.2.1.9.1 Permit allows movement of 3 or 4 axle single vehicles (65000 and 73280 pounds respectively) that exceed the Federal Bridge Formula when on the Interstate road system.
3.2.1.9.2 Type - Single Trip
3.2.1.9.3 Fee - $1.00
3.2.1.9.4 Duration - One (1) Single trip in a Five (5) calendar day period.
3.2.1.9.5 Time of Travel - Monday through Sunday sunrise to sunset during the permit Effective and Expiration Dates.
3.2.1.10 Load Code 10 Multi-trip Interstate
3.2.1.10.1 Permit allows movement of 3 or 4 axle single vehicles (65000 and 73280 pounds respectively) that exceed the Federal Bridge Formula when on the Interstate road system.
3.2.1.10.2 Type - Referred to as Multi Trip; however, permit actually allows 60 single trips in a 1 year period on 1 permit application form.
3.2.1.10.3 Fee - $60.00
3.2.1.10.4 Duration - Sixty (60) trips in a 1 year period. Movement is exempt from times of travel otherwise stated in this manual.
3.2.1.10.5 Time of Travel - Monday through Sunday sunrise to sunset during the permit Effective and Expiration Dates.
3.2.1.11 Load Code 11 Blanket Crane
3.2.1.11.1 An annual crane permit allows movement of cranes, not used in combination with any other vehicle, as defined by 21 Del.C. c. 1, §101 (10), on designated or all unrestricted routes, or both, unless posted. In accordance with 21 Del.C. c. 45, §4504, this permit can be obtained only by operators of self-propelled cranes. Separate permits are required for each power unit, and are not transferable.
3.2.1.11.2 The following provisions apply:
3.2.1.11.2.1 Permit shall have duration of one year from the effective date.
3.2.1.11.2.2 Movement will be in compliance with Part 4 - Provisional Permit Requirements of the Delaware Department of Transportation (DelDOT) Oversize Overweight (OSOW) Hauling Permit Policy and Procedures Manual, with the following exceptions:
3.2.1.11.2.2.1 Self-propelled cranes with an annual blanket permit may move 24 hours a day. Monday-Sunday except during restricted Holiday periods.
3.2.1.11.2.2.2 Self-propelled cranes with an annual blanket permit moving at night will have warning lights in accordance with Part 4 - Provisional Permit Requirements of the DelDOT OSOW Hauling Permit Policy and Procedures Manual.]
3.2.1.11.2.2.3 During Holiday restricted periods movement of self-propelled cranes with Blanket Permits must follow procedures stated in Part 6 - Extreme Emergency Permit Procedures.
3.2.1.11.2.2.4 In designated congested areas, DelDOT may restrict movement during AM and PM commuter travel periods.
3.2.1.11.2.2.5 The Blanket Permit holder is required and responsible for obtaining current travel restrictions prior to movement with blanket permits.
3.2.1.11.3 Size of crane must not exceed:
Length - 70 feet
Width - 12 feet
Height -13 feet 6 inches
Weight -
2 axles - 56,000 pounds
3 axles - 84,000 pounds
4 axles - 112,000 pounds
5 axles or more - 120,000 pounds
Maximum single axle weight should be 28,000 lbs in any axle configuration.
3.2.1.11.4 The following fee structure shall apply:
3.2.1.11.4.1 The base cost of a one-year Blanket Permit is:
$1,500 for Self-Propelled Cranes up to and including 24,000 lbs
$2,500 for Self-Propelled Cranes over 24,000 lbs
3.2.1.11.4.2 There is also a weight fee, which is calculated as follows:
3.2.1.11.4.2.1 A $10.00 per-trip charge is assessed per each 8,000 lbs (or fraction thereof) over the licensed weight (legal limit based on the number of axles: 2 axles - 40,000 lbs.; 3 axles - 65,000 lbs.; 4 axles - 73,280 lbs; 5 or more axles - 80,000 lbs).
3.2.1.11.4.2.2 The difference between the actual weight and the legal weight is divided by 8,000 lbs to arrive at a computation factor, which is rounded to the nearest whole number. This factor is then multiplied by $10.00 to determine the additional weight fee.
3.2.1.11.4.2.3 Once the per-trip weight fee is computed, it is multiplied by 52 (based upon a reasonable determination that a Blanket Permit holder will travel at least once a week over the entire year of the permit).
3.2.1.11.4.2.4 Example - The weight fee for a 3 axle self-propelled crane at 84,000 lbs would be computed as follows: 84,000 lbs minus 65,000 lbs equals 19,000 lbs over legal licensed weight. 19,000 lbs divided by 8,000 lbs = 2.37, rounded down to 2. Two multiplied by $10.00 = $20.00, which is then multiplied by 52 to arrive at a yearly weight fee of $1,040.00. With the base cost, the total Blanket Permit fee in this example is $3,540.00.
3.2.1.11.4.2.4.1 Toll fees will NOT be computed as part of the Blanket Permit. It shall be the responsibility of the Blanket Permit holder to remit all toll fees at the time of toll road travel.
3.2.1.11.5 To qualify for an annual blanket permit:
3.2.1.11.5.1 Insurance must be in force for the effective duration of the permit.
3.2.1.11.5.2 A copy of current State of Delaware Business License must be available for verification.
3.2.1.11.5.3 All drivers of the affected self-propelled cranes must be properly licensed.
3.2.1.11.6 The following documentation must be forwarded to the Hauling Permit Office prior to the submission of the online hauling permit application:
3.2.1.11.6.1 Copy of Vehicle registration.
3.2.1.11.6.2 Original weight certification signed by the Delaware State Police Truck Enforcement Unit individual performing the certification. Certified weight of each self-propelled crane. Certification of crane (with full tank of fuel and driver) will be performed, by appointment, at the Smyrna (Blackbird) or 301 (Middletown) Weigh Station by personnel of the Delaware State Police Truck Enforcement Unit. Crane must be presented in a reduced load configuration (Required removal of component items, using appropriate equipment, in no more than 8 work hours). The applicant for a non-divisible load permit has the burden of proof as to the number of work hours required to dismantle the load. Contact to set up an appointment by calling 302-378-5230 (Blackbird) or 302-378-5714 (Middletown).
3.2.1.11.6.3 Crane manufacturer dimensional drawing.
3.2.1.11.6.4 Pictures of each self-propelled crane - sides, front, and rear.
3.2.1.11.6.5 A full description of the roadway lighting system. A self-propelled crane that does not meet the prescribed lighting requirements will not be issued a blanket permit.
3.2.1.11.7 Violation of any established rules and regulations during the time a blanket permit is held shall be cause for suspension of the current blanket permit for a time period determined by DelDOT (according to the severity of the violation). Subsequent violations could result in the loss of the permit for the remainder of the permit term, and/or the ability to obtain future blanket permits.
3.2.1.11.8 Movement from origin to destination must be by the most feasible direct route. Under all conditions, the permit holder must comply with safety considerations, bridge loading and clearance postings, and roadway restrictions and postings.
3.2.1.11.9 Blanket permit applications will be processed within two (2) weeks of submission of all required documents. All blanket permits will be re-evaluated prior to renewal. Application packets are only required for permit renewals if any changes, specifically with GVW or individual axle weights, differ from previous permit.
3.2.1.11.10 RESTRICTIONS:
3.2.1.11.10.1 A Superload will not be permitted under a blanket permit.
3.2.1.11.10.2 Travel on Interstate highways will not be permitted under a blanket permit. In accordance with Federal Truck Weight Limit Laws, Oversize/Overweight vehicles must use the Federal Bridge Formula each time that travel is desired on Interstate highways. In order to properly do this, a single-trip permit must be processed.
3.2.1.12 Load Code 12 Twin Trailer
3.2.1.12.1 Permit allows movement of a truck tractor - twin trailer combination when off the STAA road network. Permit is issued for a specific route as when exceeding reasonable access between the national network and terminal points of loading and unloading. Vehicle must be legal weight with a width of not more than 102 inches. Route must not have a posted speed limit over 30 m.p.h. and have travel lanes less than 11 feet wide as measured from face of curb or edge of travel way.
3.2.1.12.2 Type - Multi Trip
3.2.1.12.3 Fee - $300.00
3.2.1.12.4 Duration - Thirty (30) Days
3.2.1.12.5 Times of Travel - Monday through Sunday 24 hour continuous movement.
3.2.2 Government No Charge Permits
The Department may issue no charge hauling permits to government agencies (Federal, State, County & Local) for the movement of their over-dimensional and/or overweight equipment.
Note: Additional information concerning the formulation of such an agreement can be obtained by contacting the Hauling Permit Office at (302) 744-2700.
3.2.3 Extreme Emergency Permits
An extreme emergency hauling permit is defined as authorization to move OSOW equipment in response to a calamity, existing or imminent, man-made or natural causes, or other situations which requires immediate remedial action to protect life or property. An example of an emergency move would be movement of equipment in response to a train derailment, flood, explosion, etc. See PART 6 - EXTREME EMERGENCY PERMIT PROCEDURES for detailed processing instructions.
3.3 How to Apply. OSOW hauling permits can be applied for electronically as described in subsection 3.3.1 below or via a Third Party as described in subsection 3.3.2. Applications for permits will not be accepted via phone, in-person or facsimile.
3.3.1 Electronically. OSOW hauling permit application can be entered directly on the DelDOT OSOW Permit System at https://www.deldot.gov/osow/application/login

Figure 3.1 - Oversized/Overweight Vehicle Permit Website
To use the DelDOT web based Oversize Overweight Permit System customer must establish an online account. 'Click' on the Don't have an online account? Register now link located beneath the Login box to self register.
This direct entry process is described in detail in the State of Delaware Oversize/Overweight Permit System User's Guide for the On-Line Customer. To view guide 'Click' on User Guide located under Information group.
3.3.2 Third Party. Permits may also be obtained by contacting any one of the several communications redistribution firms (Permit Services) authorized by the State to perform such work.
3.4 Rules of Issuance
3.4.1 Any person making application for a permit shall provide accurate information concerning the granting of the permit. Any permit obtained on the basis of false or misleading data is null and void. Any fee levied for it shall not be transferred or returned.
3.4.2 No person shall violate any of the terms, conditions, restrictions, rules, or regulations published as a part of this policy or stated on the permit. Failure by the applicant to comply with and agree to all provisions stated within this policy and stated on the face of the permit shall render the permit null and void. Such violations may also be the basis for denying future permits.
3.4.3 All permit applications will be considered on an individual basis. The safety devices, rules, and regulations required of each move are described in Part 4 and Appendix A of this Manual. The Department reserves the right to require flaggers, additional signs, additional lighting, additional company escort vehicles, and/or Delaware State Police escorts, along with any other safety devices deemed necessary by DelDOT to ensure the safety of the traveling public.
3.4.4 The issuance of a hauling permit by the State in no way guarantees any roadway or structure to be capable of carrying or passing the vehicle or load described. The permit does not supersede any lesser load limit posted on a bridge or highway unless so noted.
3.4.5 The permittee shall assume all responsibility for any damages to road surface, traffic control devices, bridges, above ground utilities, or other structures and all liability in case of injury to person or property, public or private that may result from such movement. Liability and property damage insurance in sufficient amounts to cover any and all claims that may arise shall be carried by the permittee, and under the coverage, the State of Delaware shall be saved harmless from any such claim.
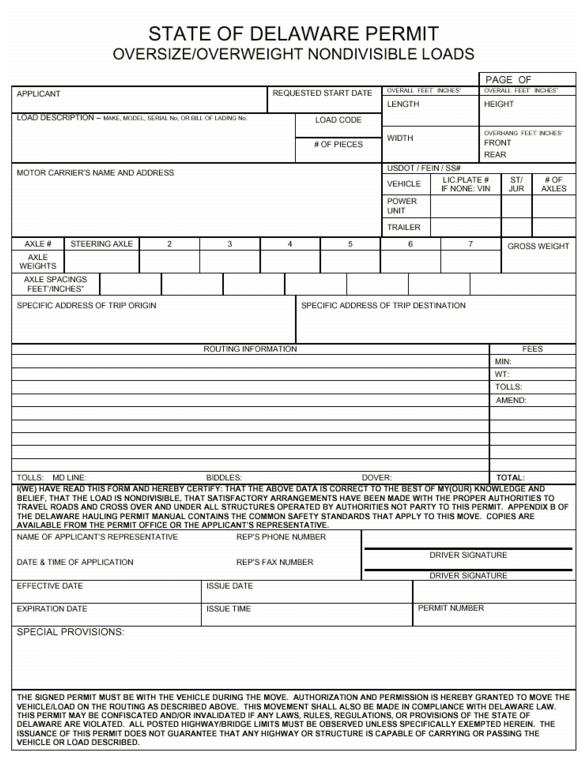
3.4.6 Every permit granted shall be electronically generated. Each permit shall contain a description of the vehicle and/or load, a complete routing schedule, with exceptions, and a statement of fee levied.
3.4.7 Permits may be granted only for vehicles or trailers complying with Title 21, Chapter 21, of the Delaware Code. Every permit, including supporting documentation, shall be carried in the vehicle to which it refers during the movement it authorizes and it shall be open to inspection by any police officer or DelDOT employee. Copies of multi-trip permits issued to utility companies may be carried by their vehicles in lieu of the original. Copies of multi-trip permits issued for bus operation may be carried in the buses in lieu of the original. Copies of multi-trip permits issued for the movement of double-bottom vehicles may be carried in the vehicle in lieu of the original or they may be posted at the destination point of the route or they may be retained at the nearest office of the permittee. Copies of multi-trip route permits shall be posted at the destination point or the main office of the company. Copies of a ship permit may be carried by the movers of the loads associated with the ship permit.
3.4.8 Permits shall not be issued for a reducible load, with the exception of 3 and 4 single axle vehicles and ship permits described herein.
3.4.9 Delaware law allows for 3-axle vehicles to carry up to 65,000 lbs., 70,000lbs. with an annual weight registration fee permit, and 4-axle vehicles the GVW permitted is 73,280 lbs. These vehicles are legal on all roads in Delaware with the exception of the Interstate system where the Bridge Formula prevails. The State of Delaware, under grandfather clauses, allows for single trip permits to be issued for these vehicles to run on the Interstate system in Delaware up to their registered and/or permitted weight.
3.4.10 Delaware acknowledges being pre-exempted for reasonable access to be in compliance with 23FR658.19. With the exception of the Interstate system, all designated routes have full facilities on route and do not require additional access. On the Interstate system, reasonable access shall be as defined in 23CFR658.19 except at those interchanges where no facilities are available and are so signed.
3.4.11 A permit may be denied or revoked in order to preserve the safety of the traveling public and/or to protect the structural integrity of highways and/or bridges or as otherwise authorized by the Department.
3.4.12 Permitted loads not exceeding 75 feet in Length, 12 feet in Width, 14 feet 6 inches in Height, and 120,000 pounds will be allowed to move from 9pm to 5am Monday through Friday with prior approval. When applying for an oversize load permit, the night time travel must be requested and approval indicated in the Special Provisions portion on the approved permit. DelDOT reserves the right to restrict moves within this time period on a case-by-case basis in order to minimize impacts to the traveling public and to ensure public safety.
3.4.13 If load cannot be moved at posted speed the permittee shall note the travel speed of the load along the intended route on the permit application. DelDOT reserves the right to restrict moves on a case-by-case basis in order to minimize impacts to the traveling public and to ensure public safety.
3.5 Amending a Validated Permit. Only a DelDOT Permit Agent can amend a Validated permit. The Customer must telephonically notify the Hauling Permit office on or before the expiration date to request an amendment of a Validated permit.
3.5.1 Only the following data fields may be amended on a Validated (Purchased) permit due to a breakdown of the piece of equipment:
Power Unit License Number
Trailer License Number
Note: Both Power Unit and Trailer License Numbers cannot be amended on the same permit unless it is prior to effective date of permit.
3.5.2 Route may be amended due to limitations of roadways as determined by DelDOT. Beginning and ending route (other than a beginning or terminal point within Delaware) may be amended if confirmed by bordering state DOT Highway Official.
3.5.3 Extension of Expiration Date. On a Validated (Purchased) permit the expiration date may be extended 3 days due to a breakdown of the piece of equipment.
3.5.4 Weather conditions or other natural causes - The expiration date may be amended to the next business day after expiration date that roadways are clear of weather conditions or other natural causes as determined by DelDOT.
3.5.5 Fee - A fee of $10.00 may be charged to amend a Validated permit.
4.1 Introduction. The Delaware Department of Transportation has adopted the following general permit requirements set forth in this section as well as the supplemental safety requirements that are set forth in Appendix A of this Manual for use by permittees when in transit within Delaware. These requirements have been adopted in part from the Guide for Vehicle Weights and Dimensions prepared by the Subcommittee on Highway Transport and officially adopted by the American Association of State Highway and Transportation Officials (Revised April 2001). These requirements are set forth, in order to promote public safety, minimize impacts to the traveling public, and minimize impacts/damage to public facilities.
4.2 Times of Travel
4.2.1 Permitted vehicles may move during the permit Effective and Expiration Dates as indicated below unless otherwise authorized or prohibited by other requirements in this section. DelDOT also reserves the right to restrict moves within this time period on a case-by-case basis in order to minimize impacts to the traveling public and to ensure public safety.
4.2.1.1 Load Code 1 Oversized - Monday through Sunday sunrise to sunset
4.2.1.2 Load Code 2 Overweight - Monday through Sunday sunrise to sunset.
4.2.1.3 Load Code 3 Superload - Refer to PART 5, specifically 5.3.
4.2.1.4 Load Code 4 Manufactured Housing - Monday through Sunday sunrise to sunset.
4.2.1.5 Load Code 5 Sealed Container - Monday through Sunday 24 hour continuous movement.
4.2.1.6 Load Code 6 Ship - Monday through Sunday 24 hour continuous movement.
4.2.1.7 Load Code 7 Pole & Piling - Monday through Sunday 24 hour continuous movement.
4.2.1.8 Load Code 9 Single Trip Interstate - Monday through Sunday 24 hour continuous movement. Movement is exempt from holiday restriction periods.
4.2.1.9 Load Code 10 Multi Trip Interstate - Monday through Sunday 24 hour continuous movement. Movement is exempt from holiday restriction periods.
4.2.1.10 Load Code 11 Annual Crane - Monday through Sunday 24 hour continuous movement. Movement during holiday restriction periods must follow emergency procedures in PART 6 of this manual.
4.2.1.11 Load Code 12 Twin Trailer - Monday through Sunday 24 hour continuous movement.
4.2.2 Permitted loads not exceeding 75 feet in Length, 12 feet in Width, 14 feet 6 inches in Height, and 120,000 pounds will be allowed to move from 9pm to 5am Monday through Friday with prior approval. DelDOT also reserves the right to restrict moves within this time period on a case-by-case basis in order to minimize impacts to the traveling public and to ensure public safety. Haulers requesting night movement must set the After Hour Move box on the permit application and enter "Request night movement of envelope vehicle/load" in the Comments section of the online permit application.
4.2.3 If the Department authorized permitted vehicles, other than those designated in 4.2.2 above, to move during designated times between sunset and sunrise special lighting requirements as identified in this section of the Manual must be incorporated with move. If a night move is authorized, the Department may also require additional lights, company escort vehicles and/or Delaware State Police escort vehicles on a case-by-case basis as identified in the Special Provisions portion of the hauling permit.
4.2.4 Due to the amount of highway traffic on holidays, vehicles and loads requiring oversize and/or overweight permits shall be prohibited from traveling on those days. Prohibited holidays include New Year's Day, Memorial Day, Independence Day, Labor Day, Thanksgiving Day, the day after Thanksgiving, and Christmas. Movement of such vehicles and loads may also be prohibited on any other days or hours when such movements may substantially affect the safety of the motoring public. For specific movement days and times refer to the Holiday Restrictions link on the DelDOT OSOW Permit System www.osow.deldot.gov
4.3 Inclement Weather.
4.3.1 When road conditions, visibility or unfavorable weather conditions make traveling hazardous to the operator or the traveling public, permitted vehicles are not authorized to operate, unless responding to an emergency. Vehicles, which are underway when inclement weather occurs, shall exit the road at the first available safe location and park in a safe place until the weather clears or until road conditions improve to allow safe travel conditions. Law enforcement judgment shall prevail in all circumstances.
4.4 Speed Limits
4.4.1 Vehicles and loads requiring permits may travel at the posted maximum speed limits unless specifically prohibited by the permit. Oversized/overweight moves that must operate at speeds lower than the posted speed limit shall be subject to additional time restrictions as determined by DelDOT Traffic.
4.4.2 If load cannot be moved at posted speed the permittee shall note the travel speed of the load along the intended route on the permit application and may be subject to additional requirements based on the information provided by the permittee at time of permit application.
4.5 Routing
4.5.1 To the greatest extent possible, permittees and users shall limit travel to the shortest practical route using Interstate and State routes to reduce travel on secondary and local highways. The most direct route shall be used for all oversize/overweight moves. Deviation from the route specified on the permit is not permitted and is cause for revocation of the permit. Intermediate stopping points and round trips are not permitted under a single trip hauling permit.
4.5.2 The permit shall authorize movement only on the pavement portion of those highways specified in the permit. The permit does not authorize movement upon shoulders unless so noted.
4.5.3 The permit is only for route designated. The permit is only issued for movement on state maintained roadways.
4.5.4 DelDOT publishes a list of permanently and temporarily restricted routes in which vehicles possessing a valid oversize/overweight vehicle permit are not authorized to travel upon. During the application process, it will be the permitee's responsibility to make sure that the route they will be traveling does not include any permanently and/or temporarily restricted routes. The lists of permanently and temporarily restricted routes can be found on DelDOT's website at the following locations:
Permanently Restricted Routes
https://www.deldot.gov/osow/application/permrestrictions
Temporarily Restricted Routes
https://www.deldot.gov/osow/application/temprestrictions
The Department reserves the right to route vehicles to a permanently or temporarily restricted route on a case-by-case basis. The Department also reserves the right to change the list of permanently and/or temporarily restricted routes at any time without notice to the permittee.
4.6 Safety Requirements. The Delaware Department of Transportation has adopted the supplemental safety requirements as outlined below in addition to any other requirements that are set forth in this Manual and the Delaware Manual on Uniform Traffic Control Devices (MUTCD). The requirements that are presented below shall be adhered to for all oversized/overweight moves, including standard (non-superload) moves and superload moves.
4.6.1 Escort vehicles shall be provided for oversize/overweight moves in order to enhance the safety of the traveling public, enhance the safety of the people involved in the movement of the over dimensional load and to prevent damage to the State's highway system. Individual escort vehicle requirements are outlined below and are summarized in Table 4.2 at the end of this Section:
4.6.1.1 Escort vehicle(s) shall be a single unit non-permitted vehicle, no smaller than a compact car. The escort vehicle shall not be attached to any other vehicle.
4.6.1.2 Escort vehicle(s) shall escort only one oversize vehicle or load. More restrictive conditions may be required on high volume highways or when the lane width is less than twelve (12) feet.
4.6.1.3 One (1) escort vehicle is required for vehicles and loads more than thirteen (13) feet in width but not exceeding fourteen (14) feet. The escort vehicle shall be behind an over width vehicle or load on a multilane highway, and in front of an over width vehicle or load on a two-lane highway.
4.6.1.4 Two (2) escort vehicles are required for vehicles and loads more than fourteen (14) feet in width. One (1) escort vehicle shall be in front of the over width vehicle or load and one (1) behind. A separate state police escort (third escort) is required for vehicles and loads more than fifteen (15) feet in width.
4.6.1.5 Vehicles and loads ninety (90) feet or more in overall length are required to have one (1) rear escort vehicle. Vehicles and loads one hundred (100) feet or more in overall length are required to have two (2) escorts, one (1) in front, and one (1) in the rear. Vehicles and loads one hundred twenty (120) feet or more in length are required to have a separate state police escort (third escort).
4.6.1.6 Two (2) escort vehicles are required for vehicles and loads fifteen feet (15') or more in height. One (1) escort vehicle shall be in front of the over height vehicle or load and one (1) behind. A separate state police escort (third escort) is required for vehicles and loads seventeen feet - six inches (17' 6") or more in height.
4.6.1.7 Vehicles and loads with a rear overhang of fifteen (15) feet or more shall have one (1) rear escort unless the permit specifies otherwise.
4.6.1.8 Two (2) escort vehicles, one (1) in front and one (1) behind the oversize vehicle, are required when previous paragraphs separately require one (1) escort in the front and one (1) behind for multiple conditions.
4.6.1.9 Two (2) escort vehicles are required for vehicles and loads over 120,000 lbs. weight. One (1) escort vehicle shall be in front of the overweight vehicle or load and one (1) behind. A separate state police escort (third escort) is also required.
4.6.1.10 A single Delaware State Police escort can escort up to a maximum of two loads in a single move if the loads are moved at the same time, other required escorts are available as stated above, and communication is present between the loads.
4.6.1.11 Vehicles and loads that are only overweight or are twelve (12) feet or less in width and that cannot move freely with the flow of traffic may be subject to escort requirements.
4.6.1.12 Escort vehicles shall have visual contact with the permitted vehicle and have two-way radio communication with the driver of the permitted vehicle.
Note: See items 8-12 for additional escort vehicle requirements
4.6.2 Warning Flags
4.6.2.1 Required warning flags shall be in evidence during daylight hours. Red or orange fluorescent warning flags are required and shall be at least eighteen (18) inches square. Flags shall be securely fastened to the vehicle or load by at least one corner of the flag or securely mounted on a staff.
4.6.2.2 Warning flags are required on vehicles and loads, which exceed legal width. These vehicles and loads are required to bear flags at the extremities of the vehicle or load as shown in Figure 4.1.

Source: AASHTO Guide for Vehicle Weights and Dimensions
4.6.2.3 Flags are also required on vehicles and loads which exceed legal length or which have a rear overhang in excess of four (4) feet. There shall be a single flag at the extreme rear if the over length or projecting portion is two (2) feet wide or less. Two (2) flags are required if the over length or projecting portion is wider than two (2) feet and shall be located to indicate maximum width. (See Figure 4.2)

Figure 4.2: Warning Flags on Overlength Loads or Loads With a Rear-End Overhang
Source: AASHTO Guide for Vehicle Weights and Dimensions
4.6.3 Warning Lights. General Lighting Requirements
4.6.3.1 Load hauling vehicles and escort vehicles shall travel with low beam headlights on at all times.
4.6.3.2 While not required in Delaware, load-hauling vehicles may display a flashing 360-degree yellow (amber) light at an elevation above the highest point of the vehicle. A second flashing 360-degree light may be at the rear of the load if the load obstructs the visibility of the 360-degree light on the load-hauling vehicle. The 360-degree light shall be visible in all directions from a distance of 1,000 feet during daylight hours with a flash rate of 60 to 90 flashes per minute (FPM). The 360-degree light lens shall be at least 4 inches high whose minimum width or diameter at that height is 4 3/4 inches.
4.6.3.3 While not required in Delaware, warning lights for escort vehicles shall be located on the roof of the vehicle perpendicular to the length of the escort vehicle. The warning light bar shall be a minimum of 43 inches and a maximum of 52 inches long, a minimum of 10 inches and a maximum of 13 inches wide, and a minimum of 4 inches and a maximum of 8 inches high, consisting of flashing or strobe lights. Each warning light bar shall consist of a minimum of four lights. If flashing lights are used, they shall consist of at least two 95 and two 150 minimum FPM rotators; mirrors shall be placed diagonally between lights (mirrors to be reflective on both sides). All lights shall be visible on a 360-degree basis from the vehicle for a distance of 1,000 feet and arranged with at least two lights in each end of the bar light. The dome cover color shall be amber. The warning lights may be displayed while escorting the load in Delaware.
4.6.3.4 Whenever the rear running lights, stop lights, turn signals, or hazard-warning lights are obstructed by the load on a vehicle, lighting equipment shall be displayed on the rear of the load equivalent to the obstructed lights or signals.
4.6.4 Load Warning Lights
4.6.4.1 Warning lights shall be used for authorized night operations as shown in Figures 4.3 and 4.4. The lights must be visible from a minimum of 500 feet in all directions. The lights shall be steady burning. The color of the lights shall be as follows:
4.6.4.1.1 Amber: Lights on extremities visible from the front of the vehicle and/or load and lights on extremities in the middle or near the front of the vehicle and/or load.
4.6.4.1.2 Red: Lights on extremities visible at the rear or near the rear of the vehicle and/or load.
4.6.4.2 For overwidth loads uniform in width, place amber lights on the forward corners of the load and red lights on the rear corners of the load as shown in Figure 4.3.
4.6.4.3 If the load is overwidth for its entire length with a wider portion near the middle of the load, place red and amber lights at the rear and front corners of the load, respectively, with amber lights on the sides at the extreme limits of the load as shown in Figure 4.3.
4.6.4.4 If the load is nonuniform in width with the overwidth portion at the rear extremity of the load, place red lights on the side of the load at its extreme width as shown in Figure 4.3.
4.6.4.5 If the load is nonuniform in width with the overwidth portion to the front, place amber lights on the side at the load extremities as shown in Figure 4.3.

Figure 4.3: Warning Lights on Overwidth Loads
Source: AASHTO Guide for Vehicle Weights and Dimensions
4.6.4.6 For loads of legal width that are over length with a rear overhang exceeding four (4) feet, place four red lights on the rear and sides of the overhanging portion of the load as shown in Figure A.4. Amber lights are required at least every six (6) feet on both sides of the overhang as shown below.

Figure 4.4: Warning Lights on Overlength Load or Loads With a Rear-End Overhang
Source: AASHTO Guide for Vehicle Weights and Dimensions
4.6.5 Warning Signs
4.6.5.1 Warning signs shall be displayed during all oversize movements. Load hauling vehicle warning signs shall be at least seven (7) feet long and eighteen (18) inches high. The sign's background shall be yellow with black lettering, and for night moves, constructed of a high-intensity reflective material. Letters shall be at least ten (10) inches high with a 1.41-inch brush stroke. Note: If Series E Modified text is used, the brush stroke shall be two (2) inches.
4.6.5.2 Vehicles and loads exceeding legal width shall display two signs with the wording "OVERSIZE LOAD". One sign shall be on the front of the vehicle. The other shall be on the rear of the load; however, if the sign cannot be attached to, or is not legible on the load, then the sign shall be attached to the rear of the vehicle itself. Refer to Figure 4.5.

Figure 4.5: Warning Signs on Oversize Loads
Source: AASHTO Guide for Vehicle Weights and Dimensions
4.6.5.3 Vehicle and loads exceeding legal length or legal rear overhang shall be required to display two signs with the wording "OVERSIZE LOAD". One sign shall be on the rear of the over length or overhanging part of the load; however, if the sign cannot be attached or is not legible here, then the sign shall be attached to the rear of the vehicle itself. The other sign shall be attached to the front of the vehicle. Refer to Figure 4.6
.
Figure 4.6: Warning Signs on Overlength Loads or Loads With a Rear-End Overhang
Source: AASHTO Guide for Vehicle Weights and Dimensions
4.6.5.4 Escort vehicles shall display a sign on the roof or front and rear of the escort vehicle that is at least five (5) feet long and twelve (12) inches high with eight (8) inch high letters. For roof-mounted signs, the sign shall be legible on both sides with the wording "OVERSIZE LOAD". The sign shall be mounted on the roof perpendicular to the length of the escort vehicle. For front and rear mounted signs the legend shall read "OVERSIZE LOAD".
4.6.5.5 Warning signs shall not obstruct lights and other safety devices on the vehicle with load or on the escort vehicle.
5.1 Definition
5.1.1 A superload is defined as a vehicle and/or load having any one of the following physical characteristics:
Length - One Hundred Twenty (120) feet or greater;
Width - Fifteen (15) feet or greater;
Height - Fifteen (15) feet or greater;
Gross Vehicle Weight (GVW) - 120,000 pounds or greater.
Examples of superloads include house moves, overweight reactors, generators, cranes, etc. For superload permit application information refer to Part 3 of this Manual.
Superload permits and moves must adhere to the general permit requirements as described previously in Part 4, and the following additional requirements, as well as the requirements set forth in Appendix A of this Manual:
5.1.2 A superload is further defined by type of physical characteristics.
Type 1 - Length only
Type 2 - Width only
Type 3 - Height only
Type 4 - GVW only
Type 5 - Combination of two or more physical characteristics
5.2 General
5.2.1 Superload moves will be considered on a case by case basis.
5.2.2 Requirement for permit application submission and review lead time will vary depending on, but not limited to, superload type, proposed route, size of vehicle/load, and number of DelDOT sections involved with review process.
5.2.3 Permittee will enter a realistic Start Date on the permit application that will take into account the stated application review time below.
5.2.4 When Planning for Move
5.2.4.1 Review escort, sign, and flag requirements are outlined in PART 4 of this Manual.
5.2.4.2 Be prepared to complete and submit a Route Survey (HP Form 16). Refer to section 5.4 Route Survey Requirement and Appendix A for form and instruction.
5.2.4.3 Be prepared to complete and submit a State of Delaware SUPERLOAD Gate-Keeping Checklist (HP Form 17). Refer to Appendix A for Form and instruction.
5.2.4.4 Refer to Contact Us on OSOW Permit System web site for contact information (https://www.deldot.gov/osow/application/contactus).
5.2.4.5 The Delaware State Police shall be notified a minimum of 48 hours in advance of a superload move. To schedule a DSP escort view the DSP Escort Information link on the OSOW Permit System web site (www.osow.deldot.gov).
5.2.4.6 Be prepared to submit a dimensioned cross-sectional view of the vehicle and/or load.
5.3 Superload Permit Application Review Lead Time, Supporting Documentation and Special Provisions
5.3.1 Type 1 - Length only
5.3.1.1 Application Review Time - Application will typically be processed within five (5) business days of submission. Additional review time may be necessary based on complexity of move, timely submission of supporting documentation and availability of Department staff The Department will accept no liability or other claim due to processing delay or the refusal to permit the move at all.
5.3.1.2 Supporting Documentation
5.3.1.2.1 Permit application normally will not require supporting documentation, however, for a move of extreme length, as determined by DelDOT a route survey (See Section 5.4 entitled Route Survey Requirements) shall be requested to guarantee that a single movement can occur along the intended route. If the permitted load is forced to conduct multiple movements to maneuver through a specific location of the route, the route survey must note the impacts. Additional arrangements or data may be required to accommodate these maneuvers. Hauler is responsible for all costs associated with this work.
5.3.1.3 Times of Travel - Type 1 superload moves will be authorized to move from sunrise to sunset Monday - Sunday during the period between the permit Effective and Expiration Dates.
5.3.1.3.1 DelDOT reserves the right to restrict moves within time periods noted above on a case-by-case basis in order to minimize impacts to the traveling public and to ensure public safety.
5.3.1.3.2 To request movement during hours other than those noted above, the permittee must provide the following three (3) specific items in the Comments section of the permit application: 1. JUSTIFICATION (explain why move is necessary); 2. DATE OF MOVE / DATES OF MOVE; 3. INCLUSIVE TIMES OF MOVE in DELAWARE (Start Time of move in Delaware or at state line and End Time at destination in Delaware or state line). The review process may take up to fourteen (14) business days.
5.3.1.4 Special Provisions
5.3.1.4.1 Hauler will have 1 Front Escort, 1 Rear Escort and contract 1 Delaware State Police Trooper and Patrol Car. The permitted load may require additional Delaware State Police Troopers and Patrol Cars based on the physical characteristics of the load.
5.3.1.4.2 Additional Special Provisions may apply and will display in the Special Provisions portion of the final permit.
5.3.2 Type 2 - Width only
5.3.2.1 Application Review Time - Application will typically be processed within ten (10) business days of submission. Additional review time may be necessary based on complexity of move, timely submission of supporting documentation and availability of Department staff. The Department will accept no liability or other claim due to processing delay or the refusal to permit the move at all.
5.3.2.2 Supporting Documentation
5.3.2.2.1 Permit application may not require supporting documentation, however, for a move of extreme width, as determined by DelDOT a route survey (See Section 5.4 entitled Route Survey Requirements) shall be requested to guarantee that a single movement can occur along the intended route. If the permitted load is forced to conduct multiple movements to maneuver through a specific location of the route, the route survey must note the impacts. Additional arrangements or data may be required to accommodate these maneuvers. Hauler is responsible for all costs associated with this work.
5.3.2.2.2 For width clearance, the route survey shall guarantee that no portion of the movement shall be within three or six inches on each side of any lateral object. Lateral objects may include utility poles, cables, signs, limbs of trees, or structures. If the permitted vehicle is forced to leave the right lane of travel to avoid a lateral obstruction, maneuver through a work zone, or arrangements need to be made to move any object, the route survey must note the necessary impacts. Hauler is responsible for all costs associated with this work.
5.3.2.2.3 If the load is so wide that passage by it cannot occur to clear queued traffic, the escort requirement shall include sufficient Police Officers to provide diverting of traffic at reasonable points.
5.3.2.2.4 If the load cannot allow vehicle passage, maintenance of traffic may be required. Please refer to Section 5.5 entitled Detour/Maintenance of Traffic (MOT) Requirements. Hauler is responsible for all costs associated with this work.
5.3.2.3 Times of Travel - Type 2 superload moves will be authorized to move from sunrise to sunset Monday - Sunday during the period between the permit Effective and Expiration Dates. Movement should be avoided from 6:00 a.m. through 9:00 a.m. and 3:00 p.m. through 7:00 p.m.
5.3.2.3.1 DelDOT reserves the right to restrict moves within time periods noted above on a case-by-case basis in order to minimize impacts to the traveling public and to ensure public safety.
5.3.2.3.2 To request movement during hours other than those noted above, the permittee must provide the following three (3) specific items in the Comments section of the permit application: 1. JUSTIFICATION (explain why move is necessary); 2. DATE OF MOVE / DATES OF MOVE; 3. INCLUSIVE TIMES OF MOVE in DELAWARE (Start Time of move in Delaware or at state line and End Time at destination in Delaware or state line). The review process may take up to fourteen (14) business days.
5.3.2.4 Special Provisions
5.3.2.4.1 Hauler will have 1 Front Escort, 1 Rear Escort and contract 1 Delaware State Police Trooper and Patrol Car. The permitted load may require additional Delaware State Police Troopers and Patrol Cars based on the physical characteristics of the load.
5.3.2.4.2 Additional Special Provisions may apply and will display in the Special Provisions portion of the final permit.
5.3.3 Type 3 - Height only
5.3.3.1 Application Review Time - Application will typically be processed within ten (10) business days of submission. Additional review time may be necessary based on complexity of move, timely submission of supporting documentation and availability of Department staff. The Department will accept no liability or other claim due to processing delay or the refusal to permit the move at all.
5.3.3.2 Supporting Documentation
5.3.3.2.1 Permit application may not require supporting documentation, however, for a move of extreme height, as determined by DelDOT a route survey (See Section 5.4 entitled Route Survey Requirements) shall be requested to guarantee that a single movement can occur along the intended route.
5.3.3.2.2 If a Route Survey (HP Form 16) is required it shall guarantee that no portion of the movement shall be within three or six inches, dependent on overall width, of any overhead object. If the permitted vehicle is forced to leave the right lane of travel to avoid an overhead obstruction, maneuver through a work zone, or arrangements need to be made to move any overhead object, the route survey must note the necessary impacts. Please refer to Section 5.4 entitled Route Survey Requirements. Hauler is responsible for all costs associated with this work. DelDOT Traffic must receive a copy of the route survey prior to the approval of the permit.
5.3.3.2.3 Depending upon the height of the superload, a DelDOT Traffic approved electrical contractor may be required to perform the adjustment/removal and/or repair/replacement of any traffic signal equipment along the route during the move. The work performed by DelDOT Traffic's electrical contractor will be under the supervision of DelDOT Traffic Signal Maintenance. Hauler is responsible for all costs associated with this work and any repairs that are a result of the move. DelDOT Traffic must receive written confirmation prior to the approval of the permit, that the approved contractor will be available with adequate resources. Skidding of traffic signal equipment is not permitted.
5.3.3.2.4 Clearance shall be obtained from the appropriate utility company(s) serving the intended route. DelDOT must receive written confirmation from utility company(s) prior to the approval of the permit. Hauler needs to determine and provide DelDOT detail as to the work that will be required by the utility companies along the proposed route (adjustment up or taking down of lines) as this may create the need for additional traffic control measures. Hauler is responsible for all associated costs with this requirement.
5.3.3.2.5 Vegetation clearing shall be obtained from a Delaware certified arborist along the intended route. DelDOT must receive written confirmation from the arborist performing the work prior to the approval of the permit. Hauler needs to determine and provide DelDOT details as to the work that will be required by the arborist along the proposed route (description and location of vegetation removal) as this may create the need for additional traffic control measures. Hauler is responsible to obtain approval from the property owner(s) prior to removal of the vegetation. Hauler is responsible for all associated costs with this requirement.
5.3.3.2.6 Overhead wires, cables, signal or traffic lights, limbs of trees or overhead structures shall not be disturbed without first obtaining permission from the owners thereof and movements shall not be commenced until after such consents are obtained in writing. Permittee must notify and make arrangements with all utility companies and owners.
5.3.3.3 Times of Travel - Type 3 superload moves will be authorized to move from sunrise to sunset Monday - Sunday during the period between the permit Effective and Expiration Dates. Movement should be avoided from 6:00 a.m. through 9:00 a.m. and 3:00 p.m. through 7:00 p.m.
5.3.3.3.1 DelDOT reserves the right to restrict moves within time periods noted above on a case-by-case basis in order to minimize impacts to the traveling public and to ensure public safety.
5.3.3.3.2 To request movement during hours other than those noted above, the permittee must provide the following three (3) specific items in the Comments section of the permit application: 1. JUSTIFICATION (explain why move is necessary); 2. DATE OF MOVE / DATES OF MOVE; 3. INCLUSIVE TIMES OF MOVE in DELAWARE (Start Time of move in Delaware or at state line and End Time at destination in Delaware or state line). The review process may take up to fourteen (14) business days.
5.3.3.4 Special Provisions
5.3.3.4.1 Hauler will have 1 Front Escort, 1 Rear Escort and contract 1 Delaware State Police Trooper and Patrol Car. The permitted load may require additional Delaware State Police Troopers and Patrol Cars based on the physical characteristics of the load.
5.3.3.4.2 Additional Special Provisions may apply and will display in the Special Provisions portion of the final permit.
5.3.4 Type 4 - GVW only
5.3.4.1 Application Review Time - Application will typically be processed within 5 10 business days of submission. Additional review time may be necessary based on complexity of move, timely submission of supporting documentation and availability of Department staff. The Department will accept no liability or other claim due to processing delay or the refusal to permit the move at all.
5.3.4.2 Supporting Documentation
5.3.4.2.1 Permit application normally will not require supporting documentation, however, may be requested upon initial review of load and route.
5.3.4.2.2 Applications for permits which exceed a gross weight of 120,000 pounds, or which involve a route across any structure which is posted with a load limit below the gross weight of the proposed movement, must be processed and approved by the DelDOT Bridge Management Section.
5.3.4.2.3 For weight impacts, the permittee shall guarantee that no portion of the movement shall not exceed posted roadway or bridge weight limits. If the permitted vehicle is forced to structural enhance the roadway or structure to travel along the proposed route, a route survey is required noting the necessary enhancements at the structure. All enhancements must be approved by DelDOT prior to permit approval. Please refer to Section 5.4 entitled Route Survey Requirements. Hauler is responsible for all costs associated with this work.
5.3.4.3 Times of Travel - Type 4 superload moves will be authorized to move from sunrise to sunset Monday - Sunday during the period between the permit Effective and Expiration Dates as long as they can maintain a continuous travel speed greater than or equal to 10 miles per hour below the posted speed limit. If the continuous travel speed is less than 10 miles per hour below the posted speed limit, superload moves should avoid moving from 6:00 AM through 9:00 AM and 3:00 PM through 7:00 PM Monday – Friday.
5.3.4.3.1 DelDOT reserves the right to restrict moves within time periods noted above on a case-by-case basis in order to minimize impacts to the traveling public and to ensure public safety.
5.3.4.3.2 To request movement during hours other than those noted above, the permittee must provide the following three (3) specific items in the Comments section of the permit application: 1. JUSTIFICATION (explain why move is necessary); 2. DATE OF MOVE / DATES OF MOVE; 3. INCLUSIVE TIMES OF MOVE in DELAWARE (Start Time of move in Delaware or at state line and End Time at destination in Delaware or state line). The review process may take up to fourteen (14) business days.
5.3.4.4 Special Provisions
5.3.4.4.1 Hauler will have 1 Front Escort, 1 Rear Escort and contract 1 Delaware State Police Trooper and Patrol Car. The permitted load may require additional Delaware State Police Troopers and Patrol Cars based on the physical characteristics of the load.
5.3.4.4.2 Additional Special Provisions may apply and will display in the Special Provisions portion of the final permit.
5.3.5 Type 5 - Combination of two or more physical characteristics
5.3.5.1 Permittee shall adhere to all requirements set forth for Superload Type 1 to Type 4 as well as the requirements set forth in this specific type.
5.3.5.2 Application Review Time - Application will typically be processed within fourteen (14) business days of submission. Additional review time may be necessary based on complexity of move, timely submission of supporting documentation and availability of Department staff. The Department will accept no liability or other claim due to processing delay or the refusal to permit the move at all.
5.3.5.3 Supporting Documentation
5.3.5.3.1 This type of move normally will require a Route Survey (HP Form 16). Please refer to Section 5.4 entitled Route Survey Requirements.
5.3.5.3.2 This type move normally will require State of Delaware SUPERLOAD Gate-Keeping Checklist (HP Form 17). Please refer to Appendix A for forms and samples.
5.3.5.4 Times of Travel - Type 5 superload moves will be authorized to move from sunrise to sunset Monday - Sunday during the period between the permit Effective and Expiration Dates but shall adhere to all additional requirements set forth in this section. Movement should be avoided from 6:00 AM through 9:00 AM and 3:00 PM through 7:00 PM Monday - Friday.
5.3.5.4.1 DelDOT reserves the right to restrict moves within this time period on a case-by-case basis in order to minimize impacts to the traveling public and to ensure public safety.
5.3.5.4.2 Permitted Type 5 superload moves are recommended to move Tuesday through Thursday, except during the hours of 6:00 AM through 9:00 AM and from 3:00 PM through 7:00 PM, along routes located in beach resort areas from May 15 through October 1. Permitted vehicles should not be moved along routes located in beach resort areas on Mondays, Fridays, and weekends from May 15 through October 1. DelDOT also reserves the right to restrict moves within this time period on a case-by-case basis in order to minimize impacts to the traveling public and to ensure public safety.
5.3.5.4.3 The Department, at its discretion, may authorize permitted vehicles to move during designated times between sunset and sunrise, however, they may be subject to special lighting requirements identified in this Manual. If a night move is authorized, the Department may also require additional lights, company escort vehicles, Delaware State Police Trooper and Patrol Car, and/or Local Police Officer and Patrol Car on a case-by-case basis.
5.3.5.4.4 SUPERLOAD moves are not allowed to travel during Holidays and/or Events without special permission being obtained from the Department. Requests to travel on a restricted Holiday and/or during an Event must be submitted in writing detailing the reasoning for the move to occur. Holiday and event restrictions can be found on the OOPS System webpage by clicking on the Holiday Restrictions" link.
5.3.5.4.5 To request movement during hours other than those noted above, the permittee must provide the following three (3) specific items in the Comments section of the permit application: 1. JUSTIFICATION (explain why move is necessary); 2. DATE OF MOVE / DATES OF MOVE; 3. INCLUSIVE TIMES OF MOVE in DELAWARE (Start Time of move in Delaware or at state line and End Time at destination in Delaware or state line). The review process may take up to fourteen (14) business days.
5.3.5.4.6 DelDOT reserves the right to restrict moves within time periods noted above on a case-by-case basis in order to minimize impacts to the traveling public and to ensure public safety.
5.3.5.5 Special Provisions
5.3.5.5.1 Hauler will have 1 Front Escort, 1 Rear Escort and contract 1 Delaware State Police Trooper and Patrol Car. The permitted load may require additional Delaware State Police Troopers and Patrol Cars based on the physical characteristics of the load.
5.3.5.5.2 Additional Special Provisions may apply and will display in the Special Provisions portion of the final permit.
5.3.5.5.3 HP Form 17 State of Delaware SUPERLOAD Gate-Keeping Checklist Documentation required (Circled Yes) on the State of Delaware SUPERLOAD Gate-Keeping Checklist. NOTE: Required document(s) may be submitted after the initial permit application submission, however, review time may be increased.
5.4 Route Survey Requirements
5.4.1 When a Route Survey is required
5.4.1.1 It is the responsibility of the permittee to supply a completed Form displaying the required data prior to permit review. Please see Appendix A for forms and samples.
5.4.1.2 The survey shall be completed within fourteen (14) business days prior to the date of the move. The Department, at its discretion, may authorize the use of an older route survey should the physical conditions not change along the route.
5.4.1.3 The survey assures that sufficient clearance of all physical objects along the route(s) exists for the movement to be made and that no roadway or bridge weight limits will be exceeded.
5.4.1.4 For height clearance, the survey shall guarantee that no portion of the movement shall be within three or six inches, dependent on overall width, of any overhead object. If the permitted vehicle is forced to leave the right lane of travel to avoid an overhead obstruction, maneuver through a work zone, or arrangements need to be made to move any overhead object, the route survey must note the necessary impacts.
5.4.1.5 Overhead wires, cables, signal or traffic lights, limbs of trees or overhead structures shall not be disturbed without first obtaining permission from the owners thereof and movements shall not be commenced until after such consents are obtained in writing. Permittee must notify and make arrangements with all utility companies and owners.
5.4.1.6 For width clearance, the survey shall guarantee that no portion of the movement shall be within three or six inches on each side of any lateral object. Lateral objects may include utility poles, cables, signs, limbs of trees or structures. If the permitted vehicle is forced to leave the right lane of travel to avoid a lateral obstruction, maneuver through a work zone, or arrangements need to be made to move any object, the route survey must note the necessary impacts.
5.4.1.7 For length clearance, the survey shall guarantee that a single movement can occur along the intended route. If the permitted load is forced to conduct multiple movements to maneuver through a specific location of the route, the route survey shall note the impacts. Additional arrangements or data may be required to accommodate these maneuvers.
5.4.1.8 For weight impacts, the survey shall guarantee that no portion of the movement shall not exceed posted roadway or bridge weight limits. If the permitted vehicle is forced to structural enhance the roadway or structure to travel along the proposed route, the route survey must note the necessary enhancements. All enhancements must be approved by DelDOT prior to permit approval.
5.4.1.9 Submission of or operation of a route survey found not to be legitimate by any Law Enforcement Officer or DelDOT employee or a survey not actually performed on the date shown above, may result in revocation of the existing special hauling permit and may result in sanctions against the company/person that has certified the route survey as signed.
5.5 Detour/Maintenance of Traffic (MOT) Requirements
5.5.1 Applications for permits which involve temporary or permanent road closures along the intended route may require additional temporary traffic control determined by DelDOT Traffic. The hauler is responsible for all costs associated with this work.
5.5.2 A traffic control vendor, approved by DelDOT Traffic, may be required to provide temporary traffic control, such as signage, pavement markings, channelizing devices, message boards, barriers, attenuators, and personnel, to be on-site throughout the duration of the move. Any equipment and/or manpower provided shall comply with the Delaware Manual on Uniform Traffic Control Devices (DE MUTCD) Part 6, most current edition available at the time of the move. DelDOT Traffic must receive written confirmation prior to the approval of the permit, that the traffic control vendor will be available with adequate resources. The hauler is responsible for all associated costs with this requirement.
5.5.3 Variable message boards will be placed at the locations directed by the DelDOT Traffic. Message boards shall be placed one (1) day prior to the movement with the approved message provided by DelDOT Traffic. Upon placement of the variable message boards, the vendor shall notify our Transportation Management Center (TMC) (302-659-2400) with necessary contact/emergency information. Failure to have the required variable message boards placed and operational during the specified time period will result in the delay of the move(s).
5.5.4 Failure on the part of the hauler or the vendor to provide sufficient traffic control devices described on the approved plans, personnel, resources, and/or equipment may result in the cancellation, delay, or termination of the move until the deficiencies are corrected to the satisfaction of DelDOT Traffic.
5.6 Additional Requirements During Move (One or more items below may apply)
5.6.1 Any oversize and/or overweight vehicles that cannot move at normal posted highway speeds (within 10 mph) are restricted from moves in the State of Delaware between 12 Noon on Friday and 12 Noon on Monday during the timeframe from May 15 through October 1. This restriction applies to the following roads which can be modified by the Department on a case-by-case basis:
New Castle County: I-95, I-295, I-495, US 13, and SR 1
Kent / Sussex Counties: US 9, US 13, US 113, SR 1, SR 18, SR 24, SR 26, SR 54, and SR 404.
5.6.2 Superload haulers are required to give notice of a Superload move to the local 911 office (using their non-emergency phone number) and the Department's Traffic Management Center (TMC) in Smyrna, Delaware. These offices can be reached at the following numbers:
New Castle County 911 Office Non Emergency: (302) 573-2800
Kent County 911 Office Non Emergency: (302) 739-4525
Sussex County 911 Office Non Emergency: (302) 855-2980
Traffic Management Center (TMC): (302) 659-4600
5.6.3 The local 911 offices and the TMC shall be given notice of a SUPERLOAD move a minimum of 1-hour before the move takes place and at final destination or has cleared State of Delaware.
5.6.4 Superload haulers may be required to give written notice to any incorporated area on the route of a Superload movement through that area. The incorporated area shall provide written acknowledgment of the movement of the Superload. DelDOT shall be provided a copy of the written notice prior to permit approval.
5.6.5 Superloads and moves involving a Gross Vehicle Weight (GVW) under the Superload classification will be subject to individual axle weight analysis by the DelDOT Bridge Management Section and Materials and Research Section. The Sections will automatically review permits with an individual axle weight at or greater than 25,000 pounds, however, analysis may occur at a lower weight on a case-by-case basis. The permittee is responsible to effectively distribute a load or reduce the overall weight below this axle limit, as necessary, to lessen the higher live load forces overstressing state structures.
5.6.6 The Hauler agrees to and shall reimburse DelDOT for any labor, equipment, material, and evaluation costs required to support the move. Prior to the move, DelDOT shall furnish to the hauler an estimate of these services, which shall be signed and returned to DelDOT a minimum of 48 hours prior to the services. An invoice reflecting actual costs shall then be provided to the Hauler and the Hauler shall submit payment for the services rendered within 30 days of the date of the invoice. Failure to pay the invoice in a timely fashion may result in the suspension of future hauling permits being processed/ issued.
6.1 Introduction
6.1.1 An extreme emergency hauling permit is defined as authorization to move OSOW equipment in response to a calamity, existing or imminent, man-made or natural causes, or other situations which requires immediate remedial action to protect life or property. An example of an emergency move would be movement of equipment in response to a train derailment, flood, explosion, etc.
6.2 General Requirements
6.2.1 An emergency situation is one that can be confirmed by a police agency.
6.2.2 Customer requesting hauling permit must have an online DelDOT OSOW Permit System Fund Account.
6.2.3 Loads must be well marked for daylight hours and well lighted for nighttime moves in accordance with the Part 4 defined in of this manual.
6.2.4 Loads in excess of 9 feet wide or those unable to maintain posted speed limits must be accompanied by a rear escort on divided highways and both front and rear on undivided highways.
6.2.5 Emergency permits will be limited to the movement of loads and vehicles not exceeding 14 feet in width or 100,000 lbs. in weight on four axles, 108,000 lbs. on five axles or 120,000 lbs. on six or more axles. Since the Department may not be consulted in advance concerning the route, the Permittee accepts all responsibility for any accidents, damage, or other claims of any type or nature whatsoever. The issuance of an emergency permit does not authorize the movement of the permitted vehicle over a weight-restricted bridge.
6.3 Procedure
6.3.1 During business hours (8:00 a.m. - 4:30 p. m.)
6.3.1.1 Hauler will contact the DelDOT Hauling Permit Office (302) 744-2700 to alert DelDOT Permit Agent of the emergency.
6.3.1.2 Customer will be given instructions to enter the permit using the online DELDOT OSOW Permit System or provided verbal instructions for the move.
6.3.1.3 The DelDOT Permit Agent will:
6.3.1.3.1 When permit is received on the OSOW Permit System process as an Emergency Move with After Hour movement authorized if applicable, Example of a Special Provision (enter type of emergency hauler is responding):
EMERGENCY MOVE RESPONDING TO A TRAIN DERAILMENT. CONTINUOUS AND/OR AFTER HOUR MOVEMENT IS AUTHORIZED. NIGHT MOVES OF VEHICLES OR LOADS 9 FEET OR GREATER IN WIDTH OR THOSE UNABLE TO MAINTAIN POSTED SPEED LIMITS MUST BE ACCOMPANIED BY A REAR ESCORT ON DIVIDED HIGHWAYS AND BOTH FRONT AND REAR ON UNDIVIDED HIGHWAYS.
6.3.2 Nonbusiness hours:
6.3.2.1 Hauler will call the DelDOT TMC, (302) 659-4600 to discuss details of the emergency.
6.3.2.2 TMC personnel will contact with the on call DelDOT Permit Agent who will contact the hauler, discuss the emergency move request, and provide instructions for the move.




Figure A.1: HP Form 17 State of Delaware SUPERLOAD Gate-keeping Checklist
A.2 HP Form 16 State of Delaware SUPERLOAD Route Survey





Figure A.2: HP Form 16 State of Delaware SUPERLOAD Route Survey Form
A.3 Permit Format

Figure A.3: Oversized/Overweight Hauling Permit




