DEPARTMENT OF TRANSPORTATION
Division of Transportation Solutions
ERRATA
2405 Oversize/Overweight Hauling Permit Policy and Procedures Manual
* Please Note: The final regulation for 2405 Oversize/Overweight Hauling Permit Policy and Procedures Manual that was published in the September 1, 2016, issue of the Delaware Register (Volume 20, Issue 3) inadvertently contained a publication error in the PDF of the document. An “X” to denote the removal of the Extreme Emergency Hauling Permit Notification form was published in error over the Oversized/Overweight Hauling Permit form.
The PDF for this errata shows the corrected forms. For the current version of 2405 Oversize/Overweight Hauling Permit Policy and Procedures Manual, see http://regulations.delaware.gov/AdminCode/title2/2000/2400/2405.shtml#TopOfPage.
The effective date for the final order and regulation appearing in the September Register remains the same.
2405 Oversize/Overweight Hauling Permit Policy and Procedures Manual
(Break in Continuity of Sections)
6.0 Extreme Emergency Permit Procedures
(Break in Continuity Within Section)
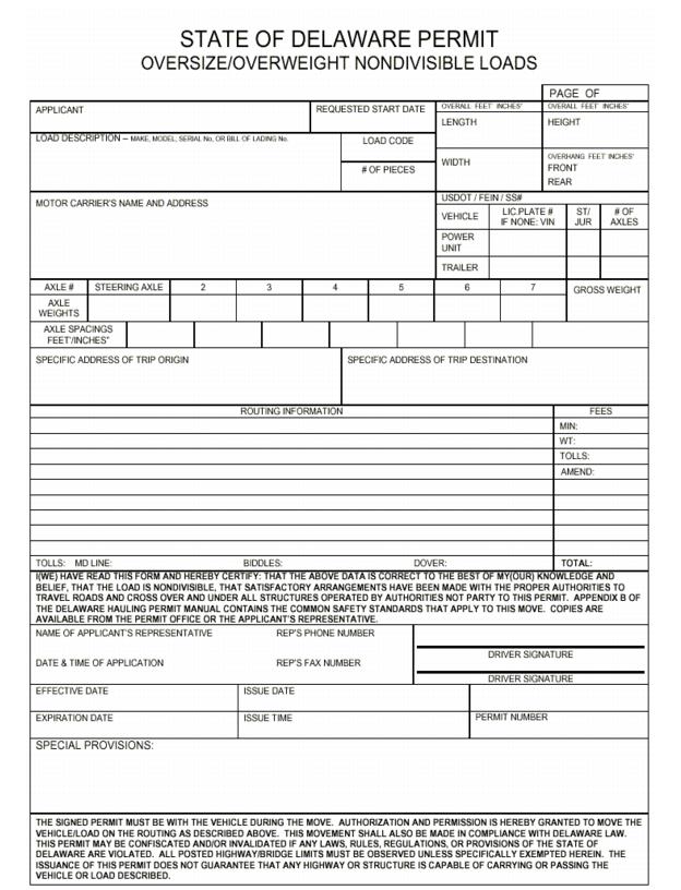
A.3 Permit Format

Figure A.3: Oversized/Overweight Hauling Permit
A.4 HP Form 8 Extreme Emergency Hauling Permit Notification

Figure A.4: HP Form 8 Extreme Emergency Hauling Permit Notification




